10. Hill Country Neo-Prairie: The unique C-shaped layout of this…
10. Hill Country Neo-Prairie: The unique C-shaped layout of this 4,237-square-foot home is positioned around a side courtyard that creates oh-so-lovely privacy on not-so-private lots. Neat details like the pivot front door, room for a hanging bed in the master suite’s covered pavilion, and an entry tower set this modern home apart in our top ten. For images and information, click
here.
9. Home in the Woods: Wrapping porches and generous windows…
9. Home in the Woods: Wrapping porches and generous windows provide ample opportunities for calming views in this 3,126-square-foot rancher with craftsman detailing. Inside, find modern warmth in the large lodge room complete with fireplace and window wall. Multiple vaulted ceilings, a deluxe master suite, and an optional apartment over the garage add real luxury. For more images and information, click
here.
8. Don’t Miss the Grilling Porch: Active families will rejoice…
8. Don’t Miss the Grilling Porch: Active families will rejoice in this four-bedroom French country style home with intelligent design features like snack bar seating in the kitchen, a computer center in the breakfast room, and a columned grilling porch with fireplace. Split bedrooms ensure privacy for the extensive master suite. For more images and information, click
here.
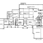
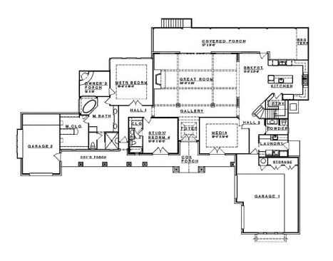
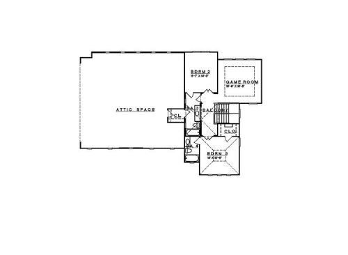
7. Hill Country Fusion Home: Designed to get the most out of a s…
7. Hill Country Fusion Home: Designed to get the most out of a steeply sloping lot, this contemporary craftsman offers four bedrooms, split garages, and room to move. A huge great room and gallery create a vibrant center in this 4,185-square-foot home. Check out the private owner’s porch, complete with an outdoor fireplace, outside the first-floor master suite. For more images and information, click
here.
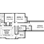
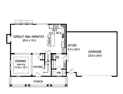
6. Colonial with Bonus: This classic colonial makes the most of …
6. Colonial with Bonus: This classic colonial makes the most of its 1,775 square feet with an open and flowing living space on the first floor and generous bedrooms upstairs. A clever storage and drop-off area from the garage enters to the kitchen, and a dining room with tray ceiling crowns this livable floor plan designed with families in mind. For more images and information, click
here.
5. Tons of Room to Expand: A formal dining room, three-car garag…
5. Tons of Room to Expand: A formal dining room, three-car garage, and walk-in closets for every bedroom make this 2,156-square-foot plan unique among our best-sellers. A sophisticated craftsman design with elegant gables and columns in the front, this plan stays strong at #5 for the second year running. For more images and information, click
here.
4. Natural Beauty: Decorative trusses crown the appealing e…
4. Natural Beauty: Decorative trusses crown the appealing exterior of this country craftsman home with wraparound porch and warm natural elements. With the option to finish the basement and expand upstairs, a growing family has plenty of room for additional bedrooms, recreation spaces, and storage, all without adding to the home’s footprint. For more images and information, click here.
3. Stunning Exterior: Despite its modest size (less than 2,100 s…
3. Stunning Exterior: Despite its modest size (less than 2,100 square feet) and cottage detailing, this plan lives big. From the foyer, columns announce the great room, highlighted by a cathedral ceiling, screened-porch access, and a fireplace with surrounding built-ins. Cathedral ceilings also grace the kitchen and breakfast area, as well as the front bedroom/study. For more images and information, click
here.
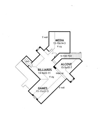
2 Perfect for Entertaining: With its rustic good looks and room …
2 Perfect for Entertaining: With its rustic good looks and room for entertaining, this 2,847-square-foot home has moved up the ranks from last year to runner-up. Extras include the exercise room attached to the master suite, extensive bonus space upstairs, and a guest suite near the front complete with a full bathroom. For more images and information, click
here.
1. Tavern-Like Features: Find a warm heart in this modest s…
1. Tavern-Like Features: Find a warm heart in this modest sized 2,091-square-foot home where the open first-floor living space connects the dining room, family room, and kitchen with a big angled kitchen island and see-through fireplace. There’s a lot to love in this cottage-fusion ranch house, our No. 1 for the second year running, including extensive outdoor spaces with a hearth-warmed barbecue porch for year-round comfort. For more images and information, click
here.
Our end-of-the-year series for 2012 wouldn’t be complete without a highlight of this year’s best-selling house plans.
We found significant overlap from last year, with six plans holding strong in the top 10. Eighty percent of these homes are one-story plans—perhaps a hallmark of aging baby-boomers. And our favorite design trends appear in force in the form of open first-floor living spaces and indoor/outdoor entertaining areas, many with outdoor fireplaces.
Rankings are based on unit sales from Hanley Wood’s (Builder‘s parent company) house plan subsidiaries, ePlans and BUILDER House Plans, with dollar sales used as a tie-breaker. Half of these plans are drawn by Texas designers and have strong sales in the Lone Star State, where home building markets had some resistance to the bust that swept the rest of the country. These plans offer nationwide appeal, however, with orders coming in from all over the country.
Builders of all kinds, consumers, do-it-yourself-ers, and dreamers have made these the top plans of 2012. Like what you see? Not your cup-of-tea? Leave your comments below.
Sandra covers the people and processes behind the business of construction. A graduate of the Wake Forest University school of business, she also holds a HERS (Home Energy Rating System) certification.