Tweaking House Plans to Fit Two or Three on a Plat

In architect Michael Woodley’s hands, a little bit of land goes a long way.

4 MIN READ

A drive through the outskirts of nearly any metropolitan area reveals a sight builders know all too well: residential subdivisions that have been put on hold, half-built, because the land values have fallen. Most of them are mapped for the standard homes that buyers have aspired to over the past few decades. But now that the housing slump has upset the suburban apple cart, what can be done with the lots that are just sitting there?

Architect Michael L. Woodley of the Woodley Architectural Group, based in Littleton, Colo., has a couple of ideas. Given the inefficiencies of low-density construction, his spatial fix involves creating new housing patterns. The old formula—in which profits followed square footage—no longer works, so he proposes elegantly tweaking house plans to fit two and three on a plat. There’s a persuasive logic at play. Smaller homes and yards make better use of the land and can be sold for a price more people can afford. And if time is the new luxury, denser communities also address the domestic needs of large segments of the population.

“It’s a vicious cycle we put people through in suburbia,” Woodley says. “They spend all weekend mowing and use a lot of water to maintain the lawn. Clearly, some people want a big yard, but there are not enough who do. For many younger, older, and single-parent buyers, that’s not their dream.”

Convinced that better design—not just a different financial model—can revive the flagging new-home market, Woodley has reimagined site and floor plans for two typical lot types—50-foot-by-90-foot alley-loaded lots and 60-foot-by-100-foot lots. His vision includes common green space, plenty of transparency, and strong but simple interiors that interlock with private courtyards. For some, this model is more innately appealing than traditional homes whose backyards look into each other—and shackle people to their lawn tractors.

Fundamentally, alley-lot development makes little sense outside the urban ring, Woodley says. His scheme returns those paved alleys to greenways while still accomplishing what alley lots try to do—encourage neighborly interaction by keeping garages off the street. “Building two sets of streets increases costs and wastes land,” he says. “We’re not touching the utilities, just landscaping over them.”

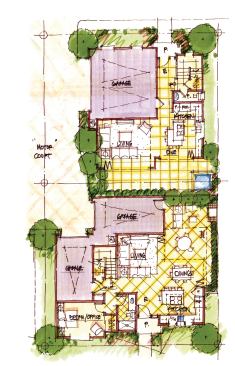
Woodley achieves double and triple density by creating micro-homes with side-access garages served by a shared motor court. On a typical lot, one house faces the street and front sidewalk; the house behind it faces the greenway sidewalk. Each pair of lots (four or six houses) is anchored by one stub lane, or motor court.

The reworked 6,000-square-foot plots follow the same playbook, though property lines shift to accommodate the green spine and, in the double-density version, a small park shared by eight houses. Less than 1,000 square feet, these homes nevertheless are designed to live large with volume spaces in front and glass walls opening to a courtyard.

About those spatial logistics: Big homes don’t always furnish well, says Woodley, who fastidiously developed the homes’ interior relationships. His schemes assume that function trumps size. For example, space-planning formulas specify 11 feet as a comfortable seating distance from a 60-inch, wide-screen television, he says, despite what yesterday’s oversized great rooms suggest. Other practical solutions include kitchen islands and furniture layouts that curve or wrap a corner so people can face each other. “Today’s furniture is on wheels, or the sections come apart for more seating options,” Woodley says. “It’s not just IKEA and West Elm offering that, but even Ethan Allen, and it speaks to today’s lifestyles.”

With their stone, wood, and disappearing glass corners, the elevations echo an airy, modern sensibility while avoiding the edginess often associated with lower-priced products. “For so long, we’ve been hung up on trying to recreate past styles and detail them authentically,” Woodley says. “People don’t want to pay for that. The new buyers, even Baby Boomers, want aesthetics that feel new.”

To innovate our way through the housing crisis, builders will have to offer ideas that reflect the social and financial realities of Americans today. That means fine-tuning design to offer more choices—in this case smartly downsizing to meet a mutually beneficial price point, while still preserving the sense of space that suburban buyers expect.

About the Author

Cheryl Weber

Cheryl Weber, LEED AP, is a senior contributing editor to Custom Home and a frequent contributor to Builder. 

Upcoming Events

  • Build-to-Rent Conference

    JW Marriott Phoenix Desert Ridge

    Register Now
  • Builder 100

    Dana Point, CA

    Register Now
  • Protecto Wall VP Standard Installation Video

    Webinar

    Register for Free
All Events