Union

San Francisco

2 MIN READ

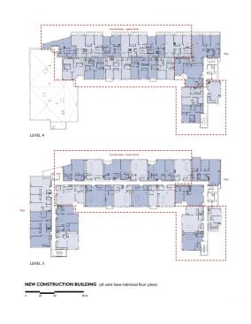
Nothing is easy in San Francis-co. Case in point: this infill site in the Mission district, which held a historic brick warehouse that was slated for adaptive reuse and, next to it, a 40-foot-deep hole that had been excavated for a commercial venture that was scrapped halfway through. SB Architects was asked to somehow marry these unusual conditions in a project that would ultimately contain 76 attached homes, mixing two-story townhomes with flats.

To be sure, the crumbling warehouse had its issues, including broken windows, unreinforced masonry in need of seismic upgrades, a parapet wall with cornice detailing that had to be completely rebuilt, and the jigsaw task of dividing its quirky cavity into apartment units. But the biggest challenge was correlating it with a new structure in a way that didn’t come across as contrived.

“Rather than doing something overly referential or historicist with the new building, we designed it for contrast,” explains architect Scott Lee. An artful juxtaposition to the warehouse’s stately brick, the new structure uses a modern vocabulary of horizontal wood siding, stucco, steel, and glass.

Project Details:

Merit

Category: Infill project

Entrant/Architect: SB Architects, San Francisco

Builder: Taisei Construction Corp., Santa Clara, Calif.

Developer: Palisades Development Group, Santa Monica, Calif.

Interior designer: Kenneth Brown Design, Los Angeles

Landscape architect: EDAW, San Francisco

In the end, the hole in the ground proved fortuitous, since the new residential program required less parking than the originally planned commercial venture. Rather than partially filling the dirt back in, the team designed the new building as a wrap-around structure with a sunken courtyard—a move that, in essence, bought them an extra story of living space. “From the front, the new building appears to be three stories with a fourth level of massing stepped back,” Lee says. “On the courtyard side, that height limit didn’t apply, and we could go five stories because the ground was pushed down. Plus, we weren’t paying the cost of bringing all that dirt back in.”

The end result is a fresh dialogue between old and new that maintains the rhythm and geometry of the street. Aptly named, the project feels every bit as diverse and eclectic as the neighborhood it inhabits.

Learn more about markets featured in this article: San Francisco, CA.

About the Author

Upcoming Events

  • Happier Homebuyers, Higher Profits: Specifying Fireplaces for Today’s Homes

    Webinar

    Register for Free
  • Sales is a Sport: These Tactics Are the Winning Play

    Webinar

    Register for Free
  • Dispelling Myths and Maximizing Value: Unlock the Potential of Open Web Floor Trusses

    Webinar

    Register for Free
All Events