Dean Kaufman
The B+W House, designed by Julie Snow Architects, occupies a cor… The B+W House, designed by Julie Snow Architects, occupies a corner lot in a single-family neighborhood of Minneapolis.
Dean Kaufman
Dean Kaufman
A cast-in-place concrete system forms the walls of the first flo… A cast-in-place concrete system forms the walls of the first floor and garden, while wood siding clads the upper level.
Dean Kaufman
The rear of the house opens into an enclosed garden that essenti… The rear of the house opens into an enclosed garden that essentially doubles the living space of the first floor.
Dean Kaufman
The home integrates a streamlined kitchen into adjoining living … The home integrates a streamlined kitchen into adjoining living and dining spaces.
Dean Kaufman
Exposed concrete serves as both a structural and finish material… Exposed concrete serves as both a structural and finish material for the first level. Upstairs, plaster walls convey a contrasting sense of lightness.
Dean Kaufman
Walnut floors on the second level supply a warm hue to balance t… Walnut floors on the second level supply a warm hue to balance the coolness of the glass and plaster.
Julie Snow Architects
The home's site plan.
Julie Snow Architects
The home's first and second floor plans.
Adam Sokol
The front elevation with the inverted window bay situated to cap… The front elevation with the inverted window bay situated to capture distant views. Architect Adam Sokol also offset the roof ridgeline to produce more headroom in the space directly above the windows.
kc kratt
The almost solid rear elevation blocks undesirable views of near… The almost solid rear elevation blocks undesirable views of nearby houses. The patio is cut out from the building's form to provide protection. "The cutouts also de-emphasize the volume," Sokol says. That volume is clad in EcoStar shingles that are manufactured using recycled tires Sokol adds.
courtesy asap pllc
The site plan shows how many houses abut the narrow lot in this … The site plan shows how many houses abut the narrow lot in this dense neighborhood.
courtesy asap pllc
This drawing shows Sokol's simple starting point and the moves h… This drawing shows Sokol's simple starting point and the moves he made in response to the site and program that resulted in the final form.
kc kratt
The western wall cants away from the adjacent house at a 6-degre… The western wall cants away from the adjacent house at a 6-degree angle to allow natural light into the neighbor's living spaces.
Adam Sokol
A small terrace on the third floor can't be seen from the street… A small terrace on the third floor can't be seen from the street and is sheltered by a large oak tree. "It's very hidden," Sokoal says, "and people are often surprised when they discover it."
kc kratt
The combined kitchen and dining space gains sunlight from three … The combined kitchen and dining space gains sunlight from three directions–the oversized patio door, the windows at the top of an open stair, and a glass wall in the living room.
The second-floor guest bedroom has built-in bookshelves and a co… The second-floor guest bedroom has built-in bookshelves and a cozy alcove that can be used for multiple purposes.
kc kratt
Sokol opened the three-story stairwell and aligned it with large… Sokol opened the three-story stairwell and aligned it with large windows and skylights. To save on cost and to integrate the stair with the interior spaces, Sokol designed a "distorted spiral drywall railing that winds down the entire stair."
kc kratt
The angled wall in the top-floor master suite is clad in natural… The angled wall in the top-floor master suite is clad in natural birch for a pale reflective surface that amplifies natural light throughout the room.
Adam Sokol
Detail showing the birch wall panels and sunlight being reflecte… Detail showing the birch wall panels and sunlight being reflected.
kc kratt
The master bath shower is also tucked beneath the offset ridgeli… The master bath shower is also tucked beneath the offset ridgeline and brightened with an operable skylight.
Adam Sokol
An evening streetscape shows the close proximity of neighboring … An evening streetscape shows the close proximity of neighboring houses.
Adam Sokol
The distant tower vista as seen from inside the house.
Floor plans
Section drawings
Sharon Risedorph
residential architect September-October 2009 internal logic … residential architect September-October 2009 internal logic project: Mullen Street House; architect: Steely Architecture, San Francisco; general contractor: Structura General Contractors, San Francisco; landscape architect: Bernard Trainor + Associates, Pacific Grove, Calif.
Sharon Risedorph
Cutouts weave outdoor spaces into the volume of the building.
Sharon Risedorph
Sharon Risedorph
Bath cabinets are faced in a zebrawood veneer.
Sharon Risedorph
Two floors below, a sheltered outdoor space tunnels through the … Two floors below, a sheltered outdoor space tunnels through the building, joining its private and public sides.
Sharon Risedorph
The top-floor master bedroom opens onto a rooftop deck.
The landscaped side yard climbs in a series of terraces that rel… The landscaped side yard climbs in a series of terraces that relate to interior floor elevations. Exterior materials that wrap into the building reinforce the inside-outside connection.
Maxwell MacKenzie
The owner requested a compact building footprint to maximize the… The owner requested a compact building footprint to maximize the outdoor space.
Maxwell MacKenzie
An open kitchen and dining area preserve views to the backyard.
Maxwell MacKenzie
Walnut flooring anchors the white walls and millwork.
Maxwell MacKenzie
Bright white interiors are juxtaposed with a charcoal-gray exter… Bright white interiors are juxtaposed with a charcoal-gray exterior.
Maxwell MacKenzie
Crisp detailing complements the white-on-white master bath.
Maxwell MacKenzie
A large window in the master bedroom frames leafy views.
Maxwell MacKenzie
A full-height door opens to the master bedroom and adjoining bat… A full-height door opens to the master bedroom and adjoining bath.
Maxwell MacKenzie
Mahogany and concrete block landscape walls complement the cube … Mahogany and concrete block landscape walls complement the cube and orchestrate the relationship between the street, a required parking court, and the house.
John McCauley
John McCauley
John McCauley
Benny Chan
The main house seen from the courtyard.
Benny Chan
Studio 0.10 architects conceived of the MuSh Residence as two vo… Studio 0.10 architects conceived of the MuSh Residence as two volumes, with the art studio, the garage, and apartment located with ease of access from the street.
Benny Chan
The main house is located toward the rear of the lot, creat… The main house is located toward the rear of the lot, creating a courtyard between the two volumes and offering views of the nearby nursery.
Courtesy Studio 0.10
The corner of the home shows a detail of the custom-patterned zi… The corner of the home shows a detail of the custom-patterned zinc rain screen, which creates a breathable air space that prevents heat transfer from the outside to the inside.
Courtesy Studio 0.10
The architects designed a circulation/art display form that is f… The architects designed a circulation/art display form that is framed in ipe.
Benny Chan
From the nursery, the two- and three-story volumes rise above th… From the nursery, the two- and three-story volumes rise above the single-level homes in the neighborhood.
Courtesy Studio 0.10
High-performance glass largely eliminates the penetration of har… High-performance glass largely eliminates the penetration of harmful UV light to protect artwork.
Courtesy Studio 0.10
The apartment in the front volume features a long narrow plan an… The apartment in the front volume features a long narrow plan and polished concrete floors.
Lars Wivelsted
The bathrooms in the main house are clad in white mosaic tile.
Lars Wivelsted
Another shot of one of the bathrooms.
Undine Prohl
The dining room and kitchen overlook the courtyard. Folding ipe … The dining room and kitchen overlook the courtyard. Folding ipe doors bring in lots of light.
Undine Prohl
Juxtaposed against the exteriors, the interiors are light and br… Juxtaposed against the exteriors, the interiors are light and bright with ipe wood floors and white-painted gypsum walls.
Courtesy Studio 0.10
The floor plans of the two volumes.
Courtesy Studio 0.10
The exploded axo shows the various design elements of the home.
Undine Prohl
Folding doors allow views of the backyard and allow cross ventil… Folding doors allow views of the backyard and allow cross ventilation.
Undine Prohl
In addition to the circulation/art display form, a Santa Barbara… In addition to the circulation/art display form, a Santa Barbara, Calif., craftsman fabricated all the windows and doors from solid ipe hardwood.
Ken Gutmaker
CHDA 2012 Custom Home / 3,000 to 5,000 Square Feet, Merit Lind… CHDA 2012 Custom Home / 3,000 to 5,000 Square Feet, Merit Linden Hills Cottage, Minneapolis Entrant/Architect: Rehkamp Larson Architects, Minneapolis; Builder: JS Johnson & Associates, Hopkins, Minn.; Landscape designer: Field Outdoor Spaces, Minneapolis; Interior designer: Alecia Stevens, Minneapolis
Ken Gutmaker
The Custom Home Design Awards judges especially admired the proj… The Custom Home Design Awards judges especially admired the project's light-filled kitchen.
Ken Gutmaker
"The scale of the pieces and parts is so important," s… "The scale of the pieces and parts is so important," says architect Jean Rehkamp Larson. Case in point: the home's well-detailed entry foyer.
Ken Gutmaker
Throughout the house, ceiling beams and trim define spaces withi… Throughout the house, ceiling beams and trim define spaces within spaces.
Ken Gutmaker
Larson tucked one of the home's four bedrooms under the eaves on… Larson tucked one of the home's four bedrooms under the eaves on the second level.
Rehkamp Larson Architects
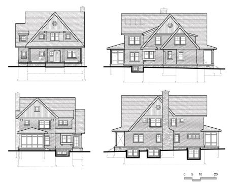
Elevation drawings for the Linden Hills Cottage.
Rehkamp Larson Architects
The home's site plan.
Rehkamp Larson Architects
The home's main level floor plan.
Rehkamp Larson Architects
The home's upper level floor plan.
Rehkamp Larson Architects
The home's lower level floor plan.
Architect Steven Ehrlich’s own house gestures to the street wi… Architect Steven Ehrlich’s own house gestures to the street with fabric privacy panels and front and side courtyards.
By separating the project into a main house (left) and garage/gu… By separating the project into a main house (left) and garage/guest house (this page, rear) Ehrlich created an outdoor room that acts as an extension of both spaces.
Existing trees, new landscaping, and a perimeter wall all enhanc… Existing trees, new landscaping, and a perimeter wall all enhance this urban home’s sense of privacy.
Todd Mason
Split-Level House
Todd Mason
The bullnose facade references other corner buildings on the str… The bullnose facade references other corner buildings on the street.
Todd Mason
Brick walls, mahogany windows, sapele siding, and the sandblaste… Brick walls, mahogany windows, sapele siding, and the sandblasted concrete entry platform are a twist on traditional neighborhood materials.
Todd Mason
The home’s framing system, a hybrid of steel and engineered wo… The home’s framing system, a hybrid of steel and engineered wood, helped trim costs.
Todd Mason
Blackened oak storage consoles double as room dividers throughou… Blackened oak storage consoles double as room dividers throughout the house.
Todd Mason
The exterior brick wall continues into the foyer.
Todd Mason
A blackened steel stair frame stitches the levels together, as d… A blackened steel stair frame stitches the levels together, as do the oiled steel handrails and pickled white oak flooring.
Credit: Todd Mason
Todd Mason
Clad in anthracite zinc, the master suite is 4 feet lower than t… Clad in anthracite zinc, the master suite is 4 feet lower than the roof terrace.
Paul Dyer
Russian Hill's tiny infill lot in San Francisco was subject to m… Russian Hill's tiny infill lot in San Francisco was subject to many physical and regulatory site constraints.
Paul Dyer
An open kitchen/family room with a breakfast bay and a counter f… An open kitchen/family room with a breakfast bay and a counter for casual dining stretches the width of the house. A full story above grade at the rear of the building, the room enjoys elevated city views.
Paul Dyer
A two-story entry hall lends a sense of verticality to the livin… A two-story entry hall lends a sense of verticality to the living and dining areas at the front of the house.
Paul Dyer
A folded street-front façade allows this guest room window to w… A folded street-front façade allows this guest room window to wrap a corner.
Paul Dyer
The main stair channels light through the core of the building.
Paul Dyer
An etched glass privacy fence expands the lower-level family roo… An etched glass privacy fence expands the lower-level family room to take in the compact backyard. A gas-fueled firepit provides an off-center focal point.
A second gable added to the home’s east façade gives it… A second gable added to the home’s east façade gives it a pleasing symmetry (opposite). Fresh white trim highlights its traditional style and materials.
Period-style detailing like a coffered ceiling and built-in book… Period-style detailing like a coffered ceiling and built-in bookcases ensures compatibility between the home’s exterior and interior.
Infill lots in established neighborhoods offer prospective homeowners a ready-made community as well as close proximity to work, shopping, schools, and entertainment venues. They also contain a distinct charm that comes from being set among various housing types designed and renovated over decades with different styles. Not to mention the character added by old-growth trees or quaint corner shops.
Builders working on infill projects face multiple challenges including tight sites; design, zoning, and building regulations; and keeping neighbors happy through timely construction. Architects or designers are responsible for the size and look of the new or renovated house fitting into surrounding context. The design team also has to figure out ways to create privacy for the homeowners, but also allow occupants to enjoy natural light, views, and appealing outdoor spaces. The houses collected in the accompanying slideshow all demonstrate that extra thoughtfulness in their design and construction that comes from overcoming the constraints of an infill lot.