White House

Moskow Linn Architects is bringing new life to Cambridge, Mass.’s Politicians’ Row—one infill site at a time.

3 MIN READ
White House, Moskow Linn Architects, Cambridge, Mass.

Trent Bell

White House, Moskow Linn Architects, Cambridge, Mass.

The somewhat ironically dubbed “White House” is named for its bright exterior, which was selected to distinguish the house from another designed by Boston-based Moskow Linn Architects down the street that’s red. As soon as another site is available, the firm has plans for a blue house to complete the set—a play on the street’s unofficial designation as “Politicians’ Row.” The nickname speaks to the initial development of about a dozen and a half homes that were built on the block as part of a post–World War II suburban-style subdivision for returning veterans. The street’s prime location, on a hill overlooking Fresh Pond and its eponymous golf course, led to the original homes being occupied by higher-ranking, and thus more politically savvy, owners than the GIs for whom they were built.

White House, Moskow Linn Architects, Cambridge, Mass.

Trent Bell

White House, Moskow Linn Architects, Cambridge, Mass.

Partner Robert Linn designed the 2,650-square-foot, three-bedroom house for his family of three. It’s similar in size to the older subdivision homes, which tend to be standard-issue mid-century low-slung ranches or split-levels. While the Red House was completed two years before the White House, change is coming slowly to the area. Linn notes that his neighbors on both sides are still the original owners. “We wanted to be contextual,” Linn explains. “It was important that the house fit in—its form, its scale, and its setbacks.”

White House, Moskow Linn Architects, Cambridge, Mass.

Trent Bell

White House, Moskow Linn Architects, Cambridge, Mass.

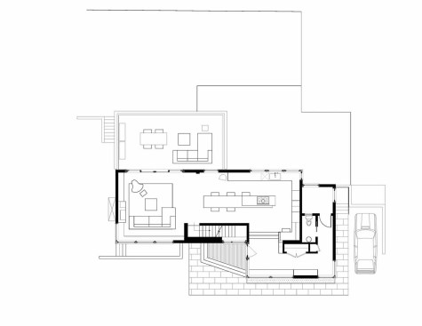
The form consists of simple volumes dominated by a long gabled mass whose zinc roof defines the street façade while creating a lofty interior for the continuous living spaces of living room and kitchen on the street level. Scale is managed by taking full advantage of the site’s downward slope to the rear. It appears to be a single-story residence from the street, although its interior footprint is actually larger on the lower level, where the bedrooms and more private spaces are located.

White House, Moskow Linn Architects, Cambridge, Mass.

Trent Bell

White House, Moskow Linn Architects, Cambridge, Mass.

The front and side foundations were reused from the previous house on the site, while the rear departs from those outlines. It’s actually smaller than its predecessor, which had received additions over the years. “We used only about half of the FAR that was available; it’s how much space we need,” Linn says. “We wanted to thread the needle—by being more contemporary, yet still fitting in.”

The architects adopted a New England vernacular, a thread that runs through much of Moskow Linn’s portfolio. The structure is made from standard stick-frame construction with an exterior of shiplap siding over insulated sheathing, with energy-efficient PVC windows. Inside, the materials are minimalist, with gypsum board walls and ceilings. The floors are polished concrete with radiant heating. “It’s not utilitarian, but durable and simple,” Linn says.

The house’s success lies in its careful balancing of distinct challenges: Its two-story plan mitigates the sound and visual intrusion of the busy street by turning major living spaces toward the lush vegetation and views to the rear, and its form fits comfortably into a long-established neighborhood while creating a distinctly contemporary expression that’s not at all stodgy. If that seems politically correct, it’s just continuing a local tradition that’s more than half a century old.

White House, Moskow Linn Architects, Cambridge, Mass.

Trent Bell

White House, Moskow Linn Architects, Cambridge, Mass.

White House, Moskow Linn Architects, Cambridge, Mass.

Trent Bell

White House, Moskow Linn Architects, Cambridge, Mass.

White House, Moskow Linn Architects, Cambridge, Mass.

Trent Bell

White House, Moskow Linn Architects, Cambridge, Mass.

White House, Moskow Linn Architects, Cambridge, Mass.

Courtesy Moskow Linn Architects

White House, Moskow Linn Architects, Cambridge, Mass.

White House, Moskow Linn Architects, Cambridge, Mass.

Courtesy Moskow Linn Architects

White House, Moskow Linn Architects, Cambridge, Mass.

Project: White House, Cambridge, Mass.
Architect: Moskow Linn Architects, Boston
General Contractor: MacArthur Construction Co.
Structural Engineer: Roome and Guarracino
Living Space: 2,650 square feet
Cost: $800,000

About the Author

Edward Keegan

ARCHITECT contributing editor Edward Keegan, AIA, is a Chicago architect who practices, writes, broadcasts, and teaches on architectural subjects.

Upcoming Events

  • Protecto Wall VP Standard Installation Video

    Webinar

    Register for Free
  • How Right-Sized Plumbing Saves Money, Saves Water, and Protects Wellness

    Webinar

    Register for Free
  • Building Careers from the Ground Up: The IUPAT Floor Covering Apprenticeship and Training Program

    Webinar

    Register for Free
All Events