wildcat ridge residence, snowmass, colo.

custom / more than 3,500 square feet / grand

1 MIN READ

voorsanger architects, new york city

Bartholomew Voorsanger, FAIA, says this 200-acre site in Snowmass, Colo., is “easily one of the most spectacular I’ve worked on.” So he felt considerable pressure to do it justice. Our judges agreed that he did. “You move through the spaces and the landscape, and the building unfolds over time and space,” said one.

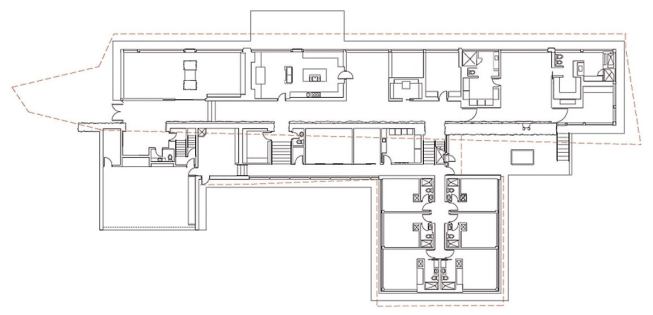
Designed to accommodate a large family, the house is 200 feet long on its north/south axis, with public spaces oriented to the west and private rooms to the east. Separating those public spaces is a massive stone wall, using pieces as large as 3 feet by 5 feet. With ceilings as high as 24 feet in some areas, the wall anchors the interiors and contributes a sense of scale. Voorsanger arranged the spaces to ensure privacy and speced plenty of wood for warmth. “It was important to make it feel like a house and not a hotel,” he explains.

Abundant glass walls frame views of the nearby mountain range. But the windows’ energy demand is answered by 60 geothermal wells, which provide 100 percent cooling and 95 percent heating for the home. The whole structure is topped by a copper-clad folded-plate roof that echoes the forms of the mountain range in the distance. Said a judge: “This architect really understood the power of the mountains.”

principal in charge: Bartholomew Voorsanger, FAIA, Voorsanger Architects
project architect: Elizabeth McClure, AIA, LEED AP, Voorsanger Architects
general contractor: Patrick Keelty, Keelty Construction, Basalt, Colo.
landscape architect: Gyles Thornely, RLA, Design Workshop, Aspen, Colo.
interior designer: Lisa Monteleone, BAMdesign, New York City
project size: 14,250 square feet
site size: 200 acres
construction cost: Withheld
photography: Thomas Damgaard, except where noted

product specs
garage doors:Wilson Doors; windows:Tischler Und Sohn (USA)

About the Author

Upcoming Events

  • Build-to-Rent Conference

    JW Marriott Phoenix Desert Ridge

    Register Now
  • Builder 100

    Dana Point, CA

    Register Now
  • Protecto Wall VP Standard Installation Video

    Webinar

    Register for Free
All Events