On The Boards: Wavehouse

1 MIN READ

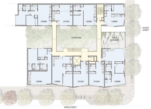
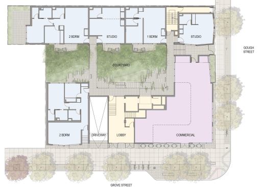
?Bay windows are synonymous with San Francisco housing, and Anne Fougeron, FAIA, enjoys them as much as the next person. Yet when the San Francisco architect went to design Wavehouse, a 34-unit condo building in the city’s Hayes Valley neighborhood, she decided on an abstract interpretation of this hallowed tradition. “We’re interested in the dynamic aspect of bay windows,” Fougeron says. “But we’re creating buildings that undulate, rather than adding to the façade.” Wavehouse’s faceted form grabs and extends views in the same way that a classic bay window does—but in a more streamlined fashion.

The façade’s rounded-wood rainscreen enhances the feeling of movement while referencing the area’s many wood buildings. This textured skin helps save energy, as does the project’s solar orientation and cross-ventilation. A central courtyard, with landscaping designed by Marta Fry, serves as a conductor of light and a circulation zone for residents. (Fougeron says the mews-like site plan plays off the layout of nearby Fulton Grove, a 1992 project by Dan Solomon, FAIA.)

Developers DM Development and DDG Partners will price most of Wavehouse’s units at market rate but will sell a few for substantially less to meet local affordable housing requirements. Parking is 5 feet below grade, with one spot for every two units. And the project will contain 2,000 square feet of ground-floor retail.

Learn more about markets featured in this article: San Francisco, CA.

About the Author

Upcoming Events

  • Build-to-Rent Conference

    JW Marriott Phoenix Desert Ridge

    Register Now
  • Builder 100

    Dana Point, CA

    Register Now
  • Protecto Wall VP Standard Installation Video

    Webinar

    Register for Free
All Events