Relaxed Living in Baton Rouge’s Perkins Lane

Louisiana’s laid-back lifestyle permeates even finely detailed housing like this infill development, which offers charming courtyards and easy access to retail

2 MIN READ

Mixed-use infill developments; smaller lots close to retail and work; built outdoor spaces with more amenities; and indoor/outdoor connections through oversized windows, glass doors, covered porches, and balconies. These are features increasingly requested by homeowners over the past several years, according to the American Institute of Architects’ (AIA) Home Design Trends Survey. Architect Mike Sullivan has been creating communities for more than 25 years and knows from experience what the AIA reports confirm: For most homeowners, active lifestyles and being near the action is more important than ever. They also want private retreats, such as attractive outdoor spaces that are usable through much of the year. Perkins Lane, Sullivan’s newest community design, fits all of those trends with gorgeous detailing and durable, high-quality finishes to boot.

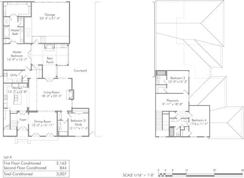
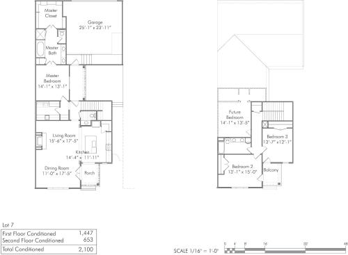
“The developer and I sat down to script the story of Perkins Lane, which we like to do at the beginning of our place-making process,” Sullivan explains. Baton Rouge is a southern city with a large student population where casual outdoor living is the standard. Open living spaces with strong indoor/outdoor relationships were a given. Sullivan took the concept even further by adding a courtyard with hardscaping, French doors, built-in gas grills, and gas lanterns for every house. “We basically took a bite out of the floor plan and crafted public spaces into more of a U-shape to get a roomy courtyard,” Sullivan says.

Project: Perkins Lane

Architect/Designer/Planner Looney Ricks Kiss, Baton Rouge, La.
Owner/Developer/Builder Dantin Bruce Development, Baton Rouge
Landscape Architect Reich and Associates, Baton Rouge Civil Engineer Ferris Engineering, Baton Rouge
Number of Units 21 semi-detached and 3 live/work houses
Living Space 1,750 to 3,500 square feet
Sales Price $400,000 to $800,000

Front porches and balconies provide semi-private outdoor areas while large public greens complete the outdoor living options. Several oaks were preserved during construction and the site plan focuses on those stately trees—using them to generate a grand entrance and shaded park. Three live/work dwellings soon will be built among those oaks, facing the street that bypasses Perkins Lane. Adding this mixed-use component makes sense given the pastiche of neighbors. Residential communities flank the 4-acre infill development, retail centers line the opposite side of the street, and Louisiana State University is a short scenic bike ride away.

“We kept with the context and density of the surrounding garden district,” Sullivan says, adding that the precedent for this high-density siting already exists within many older communities like those adjacent to Perkins Lane. Allocating space for wide sidewalks that tie into an established network within downtown Baton Rouge further weaves the development into the city’s fabric. Alley access garage placement improves walkability and community interaction, and locating the master suite on ground level enhances indoor-outdoor ties and boosts sales.

“With the master down, there has to be egress out of the courtyard,” Sullivan notes, “so we brought the egress path to the front of the house, creating the illusion of detached single-family houses from the streetscape.” This move produces yet another connection to the outdoors with an added bonus that homeowners don’t feel like they’re living in a townhouse.

Learn more about markets featured in this article: Baton Rouge, LA.

About the Author

Shelley D. Hutchins

Shelley D. Hutchins, LEED AP, writes about residential construction and design, sustainable building and living, and travel and health-care issues.

Upcoming Events

  • Protecto Wall VP Standard Installation Video

    Webinar

    Register for Free
  • How Right-Sized Plumbing Saves Money, Saves Water, and Protects Wellness

    Webinar

    Register for Free
  • Building Careers from the Ground Up: The IUPAT Floor Covering Apprenticeship and Training Program

    Webinar

    Register for Free
All Events