Cluster Housing Catches On

The high-density product type is spreading out from its California roots.

4 MIN READ

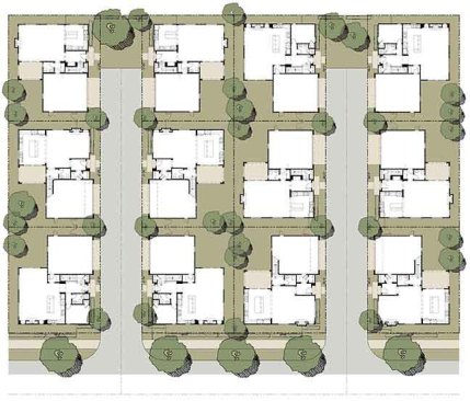
Builders and developers in western states have relied on cluster housing for more than 20 years to maximize living space in land-constrained areas. This type of single-family detached housing places garages together in a semi-private auto court to make the most of each square foot.

In his 20 years as project director for Robert Hidey Architects (RHA) in Irvine, Calif., Sherman Jones has seen this type of housing evolve to meet buyers’ changing needs. Newer models incorporate plans that meet consumer desire for multigenerational living, open floor plans, and indoor/outdoor connectivity.

Below, Jones talks with BUILDER about this changing housing type and its appeal for builders in other areas of the country.

What spurred the design of cluster housing?
In the mid- to late-1990s, townhouses were becoming unpopular with buyers who were dissatisfied with attached housing, and with builders because of the cost and liability associated with party walls. At RHA, we started studying cluster housing as a solution and soon realized that we could create a robust, small-lot, single-family-detached cluster-housing product with a similar density to townhouses.

The cluster housing product we designed in California found favor with builders because the shared auto court reduced the number of public roads necessary within a community and they found these self-contained, micro-communities within developments easy to market, when they offered amenities such as community pools, attached private garages and separate paseo courts that created friendly, pedestrian entries.

How has it evolved over the years?
Initially, we designed four-unit clusters, achieving densities of roughly 12 du/ac for 100+-unit developments but soon realized we could do six- and eight-unit clusters, achieving up to 14 du/ac. (Ultimately fire codes and the length of fire hoses determined the length of the cluster).

In 2004 we introduced a plan with a partial third floor that not only provided a bonus room but created character for the site (these units were sited as sentinels along the periphery). As these plans had limited family space, a secondary bonus room was very attractive to buyers who really liked the idea of a kids’ space in the crow’s nest. This development also had pedestrian-friendly paths leading to a wide and inviting promenade that took residents to a beautiful rec center and pool.

But coming out of the recession, with buyers more cost-sensitive, one way to lower costs was to eliminate the paseo and move the home’s entry into the motor court area. With this change, the homeowner gained additional personal yard space and benefitted from a lower HOA.

Perhaps not surprisingly given the current cost of land, the pendulum is swinging back, with some builders returning to the townhome cluster product to achieve densities of up to 20 du/ac. And, on infill sites in urban areas this product is again finding acceptance among buyers looking for more affordable homes. The fact is, the cluster-housing product can adapt to both environments – detached and attached – very well.

Where is it in use today?
In addition to including cluster housing products in nearly every master-planned community in California that we are aware of, cluster housing is now also gaining traction in other parts of the U.S. RHA is in construction documents on a product in the Deep South where cluster housing is an entirely new idea.

While in the early days all of the bedrooms were upstairs, in some of the current products, there is a master downstairs, and in others the first floor is devoted to a bedroom suite suitable for a boomerang child or grandparent, with the public spaces on the second floor and bedrooms on a third floor, these changes coming about to satisfy the demands of young or aging families and the trend toward multi-generational living.

RHA’s current interpretation of cluster housing as implemented at Andorra at Gale Ranch for Toll Brothers reflects these and other changes, resulting in a product that has become slightly less dense, as homeowners have gained extended private driveways with two additional parking spaces and extra yard space along with a lower HOA.

What do you see for the future of cluster housing?
The flexibility and scale of these detached homes make them tremendously successful for infill and rehab sites, as well as being a viable modular design for new communities. Recent trends would suggest that this popular plan form is mutually adaptable for locations where the only direction left to go is up, which may be the future of cluster products.

About the Author

Jennifer Goodman

Jennifer Goodman is a former editor for BUILDER. She lives in the walkable urban neighborhood of Silver Spring, Md.

Upcoming Events

  • Modernize Your Model Homes with Music

    Live Webinar

    Register for Free
  • Happier Homebuyers, Higher Profits: Specifying Fireplaces for Today’s Homes

    Webinar

    Register for Free
  • Sales is a Sport: These Tactics Are the Winning Play

    Webinar

    Register for Free
All Events