MFE Concept Community 2021

Renters Trading Size for Frills Fuel U.S. Apartment Boom

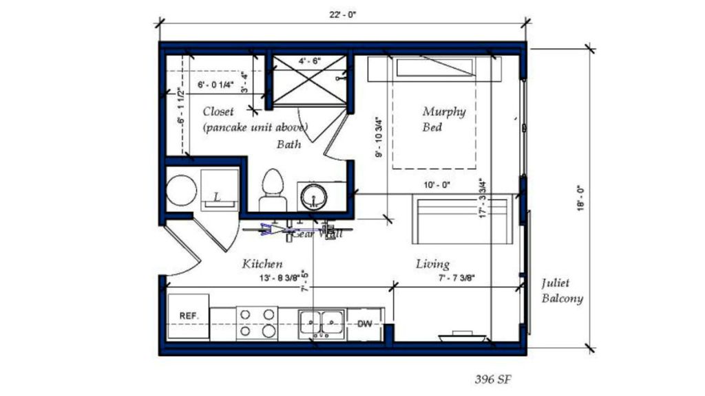
The median size of apartments in new U.S. buildings fell last year to 1,043 square feet, the smallest since 2002, Census Bureau data show. At the same time, leasing is getting more expensive. The U.S. average rent per square foot was $1.25 in May, the highest in records dating to 1996, according to Axiometrics Inc.

Read More

Upcoming Events

  • Sales is a Sport: These Tactics Are the Winning Play

    Webinar

    Register for Free
  • Dispelling Myths and Maximizing Value: Unlock the Potential of Open Web Floor Trusses

    Webinar

    Register for Free
  • Building Future-ready Communities for Less

    Webinar

    Register for Free
All Events