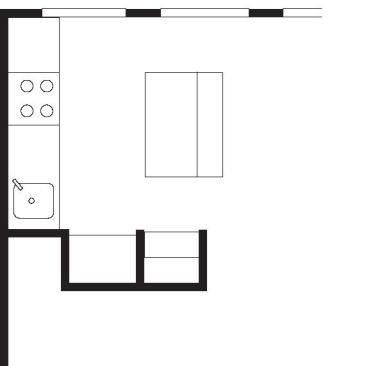
K + B Studio / Kitchen
short order
This pint-sized space presented architect Brandon Pace, AIA, LEED AP, with an outsized challenge: design a functional, comfortable, and stylish kitchen in the volume many new houses would devote to a walk-in closet.
2 MIN READ