609 Kendrick Place-Short Order

Project Details

Project Name
609 Kendrick Place-Short Order
Project Types
Custom
Project Scope
Renovation/Remodel
Shared By
Mahesh Rajanala
Project Status
Built
Room or Space
Kitchen

Project Description

Short Order
K + B Studio / Kitchen

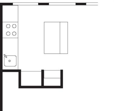
This pint-sized space presented architect Brandon Pace, AIA, LEED AP, with an outsized challenge: design a functional, comfortable, and stylish kitchen in the volume many new houses would devote to a walk-in closet. Pace managed that and more, taming a once-cluttered and awkward layout, establishing a consistent visual theme, and finishing with room to spare. The result is a cooking center that looks clean, works clean, and punches way above its weight.
Working with only 80 square feet of floor space—the legacy of an early 1980s remodel—Pace simplified the floor plan by wrapping an existing column and utility chase in a thick wall, into which he carved a refrigerator recess and microwave niche from the kitchen side and a narrow coat closet accessible from the adjacent entry hall. A room-width sink-and-range counter fills out the fixed elements of the space.

Responding to the clients’ affinity for stainless steel, Pace tapped a local metal shop to fabricate the laboratory-sleek cabinets and countertops. A folded-metal detail gives each door and drawer front an integral recessed pull. “We don’t have any exposed hardware,” Pace says. “It’s such a small space; we really wanted the detailing to be minimal.” Stainless panels line the microwave niche and wrap up the walls to bookend the sink counter. A pot rack bridges the window opening. Exposed cabinet legs give the kitchen an unfitted look. “We didn’t want to tie it down, so to speak,” he explains.

The centerpiece is a versatile island on wheels. Four feet long in its resting state, the unit can extend leaves from both ends to double its size. That seals off circulation to and from the kitchen, Pace acknowledges, but the effect on the cooks isn’t claustrophobic. “It is pretty compact,” he says, “but when you’re inside that space it’s pretty comfortable.” When meals are ready, the island withdraws its wings and rolls into the dining area to act as a serving cart.

Upcoming Events

  • Build-to-Rent Conference

    JW Marriott Phoenix Desert Ridge

    Register Now
  • Builder 100

    Dana Point, CA

    Register Now
  • Protecto Wall VP Standard Installation Video

    Webinar

    Register for Free
All Events