944LA

Project Details

Project Name
944LA
Location
AtlantaGA
Project Types
Single Family
Project Status
On the Boards/In Progress
Year Completed
2017
Size
2,347 ft²

Project Description

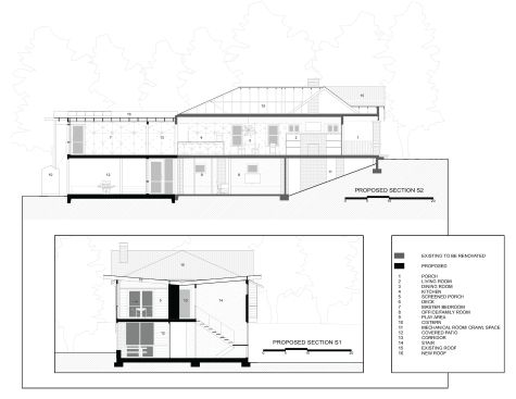
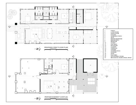
944LA is a very basic 1,123 square foot 1920’s Craftsman bungalow (one story with basement) on a tight (50’ x 150’) fairly steeply sloping lot in a very desirable neighborhood within 3 miles of downtown Atlanta. Almost all of the older houses on the street (Los Angeles Avenue) including this one are considered to be tear-downs by developers. However, the owners, a family of two adults and two children, love the house almost as much as they love modern green design. Our answer to this programmatic irony is, for economy, retention of the existing house and addition of a modern but complementary design with an inverted abstractly craftsman gable roof (aka butterfly roof), a straightforward, repetitive, cost-effective framing system (2 x 6 studs on 24” centers) that an early twentieth century carpenter would understand and correlative exterior materials and trim. In other words: the great-granddaughter of the mom. There are many sustainable features: a 500-gallon cistern for harvesting rainwater, broad sheltering eaves over glazed areas, better than code insulation and glazing, sustainable improvements to the existing envelope, LED lighting systems, 24 SEER hvac system, and use of recycled, retained and repurposed materials.

Upcoming Events

  • Protecto Wall VP Standard Installation Video

    Webinar

    Register for Free
  • How Right-Sized Plumbing Saves Money, Saves Water, and Protects Wellness

    Webinar

    Register for Free
  • Building Careers from the Ground Up: The IUPAT Floor Covering Apprenticeship and Training Program

    Webinar

    Register for Free
All Events