Additions to and Renovations of a Tudor Revival Residence

Project Details

Project Name
Additions to and Renovations of a Tudor Revival Residence
Architect
Muse Architects
Project Types
Single Family
Project Status
Built
Year Completed
2016
Size
400 ft²

Project Description

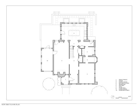
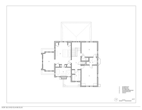
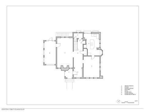
This project is an addition to and renovation of a 1920’s Tudor revival home in Chevy Chase, DC, for a couple and their three children. The family did not have a need for a traditional family room space, and preferred to use the traditional living spaces in the home to serve these purposes. Rather the kitchen was their hub of activity and they sought a new expanded kitchen that also improved the connections to the rear garden. The family also utilized their rear alley as their day-to-day entrance to the house and this required improved entrance features. Interior programmatic requirements centered on a new kitchen, a new larger mudroom, a new master suite, and a new guestroom and laundry room in the basement expansion below the kitchen. Other existing spaces were renovated to improve connections and flow through the first floor spaces. A new high efficiency HVAC system and spray foam insulation were employed to increase the home’s energy efficiency. Our major intention was to design a contextual addition, which while providing the desired interior spaces, would also improve the connections and presence of the house as it presented itself to the rear yard and alley. To facilitate this the rear portions of the rooms facing the rear garden were renovated to create new and improved connections to the new kitchen addition. Wall cabinets were minimized in the kitchen to allow for banks of windows and French doors to improve natural light to reduce energy use, cross ventilation and connection to the rear garden. The kitchen’s north orientation along with broad roof overhangs reduced the need for cooling in the summer months. The former kitchen became the new mudroom entrance into the home as well as the butler’s pantry to connect the existing dining room to the new kitchen. A modest expansion to the second floor provided for the needed space to convert two small bedrooms into a new master suite. On the exterior, this minor addition was designed to pair with an existing gabled wing of the house to create a new balanced composition of the first and second floor additions with the existing house as it presents itself to the rear garden.

Upcoming Events

  • Happier Homebuyers, Higher Profits: Specifying Fireplaces for Today’s Homes

    Webinar

    Register for Free
  • Sales is a Sport: These Tactics Are the Winning Play

    Webinar

    Register for Free
  • Dispelling Myths and Maximizing Value: Unlock the Potential of Open Web Floor Trusses

    Webinar

    Register for Free
All Events