Adirondack House

Project Details

Project Name
Adirondack House
Location
Keene ValleyNY
Architect
Manuel Builders
Project Types
Single Family
Project Scope
Renovation/Remodel
Project Status
Built
Year Completed
2014
Size
2,850 ft²

Project Description

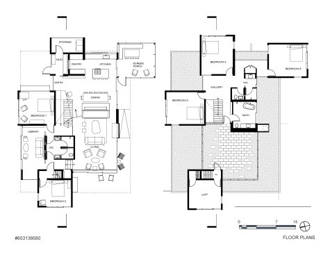
A property in upstate New York’s mountainous Adirondack region has served as a vacation retreat for two families since the late 18th century. During the 1980s, the families built an addition to the original 1950s house in an attempt to accommodate an ever-expanding circle of family and friends, but by 2012 the home was unable to accommodate the 25 people who regularly visit the property.

Forming a committee to represent both families’ interests, the clients developed a project brief that included sleeping spaces for 14 people, a communal kitchen and dining area, and universally accessible bedrooms and public spaces to ensure that visitors of all ages and abilities would be able to enjoy the home equally.

Additionally, the clients adamantly desired a cost-efficient architectural solution that would meet their modest construction budget, minimally impact the site, maintain the natural woodland environment, utilize sustainable construction methods, and occupy a small footprint.

Given the budgetary and spatial constraints, the design team developed an efficient 3,000 square foot plan nestled amongst the boulders and trees of the site. Designed as a series of two-story towers that define a common, central living area, the house has six bedrooms, four of which are located on the second level of the towers and are connected by a landscaped green roof. The large, open living spaces on the ground level are organized around a central wooden staircase that brings light into the center of the home. Adjacent to the stair, the design team developed a large, ramping floor to negotiate the site’s uneven ground conditions, connecting to a series of exterior decks that encircle the first floor.

Completed in 2015, the home’s exterior is clad in locally-sourced tamarack, a weather-resistant species of larch that recurs in the house’s interior to wrap a feature wall in the kitchen. The interior floors and walls are ash, another local wood, some of which was harvested from the trees that had been uprooted to make room for the house’s footprint. In order to connect the home’s interior spaces to the surrounding forest, the design team integrated large, energy-efficient sliding windows. Additional sustainable design features include a heavily insulated building envelope, extensive roof overhangs on the home’s south side to shield the interiors from summer heat gain, a green roof planted with local vegetation that filters rainwater and provides additional insulation, and sloping roofs oriented to accommodate photovoltaic panels.

Upcoming Events

  • Happier Homebuyers, Higher Profits: Specifying Fireplaces for Today’s Homes

    Webinar

    Register for Free
  • Sales is a Sport: These Tactics Are the Winning Play

    Webinar

    Register for Free
  • Dispelling Myths and Maximizing Value: Unlock the Potential of Open Web Floor Trusses

    Webinar

    Register for Free
All Events