Alamo Square Residence

Project Details

Project Name
Alamo Square Residence
Location
San FranciscoCA
Architect
Jensen Architects
Project Types
Single Family
Shared By
katie_gerfen
Project Status
Built
Year Completed
2016
Size
4,138 ft²

Project Description

2017 Residential Architect Design Awards
Restoration | Citation

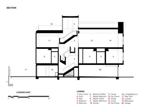
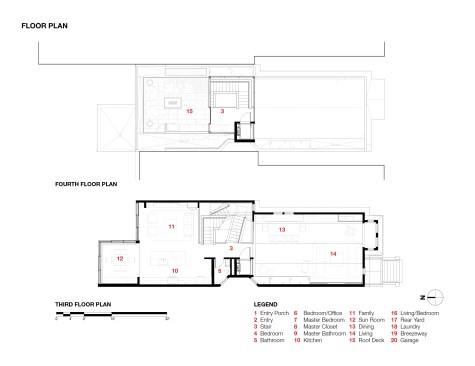
The Alamo Square Residence in San Francisco has a foot in two eras: due to local preservation rules established in the 1960s, the Victorian façade of the 4,138-square-foot townhouse had to be preserved. But inside, the clients wanted a contemporary living space. Enter local firm Jensen Architects, which restored the 1889 front to its former glory—removing prior additions—and created a sleek interior, as well as a new rear façade composed of floor-to-ceiling glazing behind perforated aluminum screens.

The restoration project was complicated by a dearth of records detailing the original design, but relying on the few existing historic photos, as well as evidence uncovered during the careful demolition of the later modifications, the team was able to reconstruct as faithful a rendition of the front as could have been hoped for.

From the street, only the subtle use of silver paint on the trim suggests that something more modern may be afoot. But walk through the front door, and there is no confusion about the contemporary aesthetic. A materials palette of white walls, glass accents, and light-colored wide-plank wood floors is deployed throughout the open-plan living spaces, which are flooded with light from the glazing at the rear. Joining the house’s four floors is a monumental wood-clad staircase that adds a boisterous element to the otherwise muted space. “I really like the vitality that the stair adds to the composition,” R. Michael Graham said. “As a piece of sculpture in the middle, it really works.” Of the whole composition, David Baker said: “It’s a really incredible renovation. It’s restrained while being completely over the top.”

Visit ARCHITECT to see the rest of the winners of the 2017 Residential Architect Design Awards.

FROM THE ARCHITECTS:

This residence embodies San Francisco’s contemporary culture: modern yet enamored with the city’s rich history. Alamo Square Park, a city-owned park built in 1857, is known for its “Painted Ladies,” the neighboring row of Victorian homes seen on many postcards. The previous owner, Verta Vinson, was a founding member of the Alamo Square Neighborhood, established in the 1960s to preserve the park and surrounding buildings. The current owners had lived in the neighborhood for years. While they loved Alamo Square’s historic architecture, they desired the openness and flexibility of contemporary residences. This led to the composition of the house as an embodiment of two identities and provided a basis for the coexistence of old and new. The challenge of restoring the original 1889 façade stemmed from a lack of documentation concerning historic details. This led to a reliance on evidence uncovered after the demo of the non-historic façade, which showed scarring and shadow vestiges of the original Stick style. These physical remnants, a few historic photographs, and existing original ornamentation, laid the groundwork for collaboration with craftspeople skilled in historic Victorian restoration, leading to a faithful reconstruction. Once completed, the restored façade was dipped in silver paint, providing a glimpse of the modern transformation behind it. Once beyond the threshold, the vertically elongated proportions of the modern spaces within, accentuated by a sculptural stair that punctures all four levels, give hints to the house’s original identity. The rear façade, composed of sliding aluminum screens, signals that the metamorphosis is complete.

Upcoming Events

  • Protecto Wall VP Standard Installation Video

    Webinar

    Register for Free
  • How Right-Sized Plumbing Saves Money, Saves Water, and Protects Wellness

    Webinar

    Register for Free
  • Building Careers from the Ground Up: The IUPAT Floor Covering Apprenticeship and Training Program

    Webinar

    Register for Free
All Events