Ambiente Gallerie – chiropractic office, event space and art gallery

Project Details

Project Name
Ambiente Gallerie – chiropractic office, event space and art gallery
Location
505 1st Ave NEMinneapolisMN55413
Shared By
Andrea Rugg Photography
Project Status
Built
Year Completed
2011
Style
Other
Size
4,800 ft²
Team
Architect: Ali Heshmati, AIA of Lead Inc. Laboratory For Environments Architecture & Design
Architect: Darin Duch of Lead Inc. Laboratory For Environments Architecture & Design
Architect: Gretha Rød of Lead Inc. Laboratory For Environments Architecture & Design
Room or Space
Other

Project Description

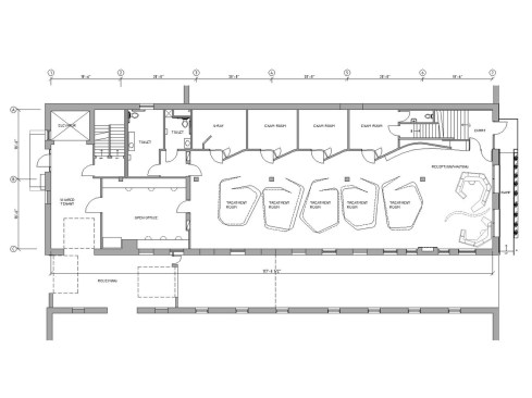
The Ambiente Gallerie project involved the rehabilitation and renovation of an existing warehouse space, which focused on creating a flexible visceral environment consistent with our client’s vision, “bridging body and mind.” What we share with our clients sometimes is the best point of departure for our common projects. We have been advocating a total environment for both physical and mental wellbeing since our studio’s conception. We believe a healthy environment must work on all levels. This idea has expanded our definition of function in architecture to include the psychological aspect of human habitation of architectural space. Based on this presumption the idiom, “form follows function,” first coined by Louis Sullivan, could become a more relevant and thought-provoking statement. When considering human habitation, technological utility and innovations are only part of the equation; integrative design considers the sensory perception, aesthetic impact and atmospheric weight of the environment as pivotal. We define integrative design as design that addresses body and mind, technology and aesthetics equally. Furthermore beauty is not an additive act; a project either possesses an innate aesthetic, which is the result of design process or it would fail. Our definition of beauty of course differs from the formulaic classical notion of beauty. Ambiente Gallerie is a combined chiropractic clinic and and art gallery. The owner, Dr. Kari Boudreau desired integration of art and design into this “environment for optimal health”. Unlike our last project with Dr. Boudreau, The Art of Chiropractic, this existing building had a very strong character. Almost three times as large as the last space, this turn of the 20th century warehouse building had an architectural luxury we had to preserve. The space itself, the interior space and its raw character became the main event and the driving force behind most of our decisions. When facing the blank space there is a sort of design calculus one must engage. Every move we make and any material, color or texture we employ in an environment contributes a value to the end atmosphere by virtue of being there. This value can be positive or negative in regard to what one wants to achieve. Therefore every move had to be measured against our ideas and goals. Responding to the program, private massage rooms took the peripheral position, further defining the large space, which could then be used for public gatherings as well as the stage for treatment rooms. The five treatment rooms are all made from a convertible, flexible and moveable white fabric so that they could get out of the way to alter the spatial organization at will, much like a sail on a sailboat. Rigged up against the ceiling these rooms can be hoisted up to open the large room for large events. At up position, these rooms act more like large lighting fixtures setting the stage for social interaction. More of an installation, our intervention takes an ephemeral approach to the more permanent existing structure which already has outlived its original purpose. We believe this to be a very responsive and sustainable approach to existing structures of architectural value. Our installations could be removed in anticipation for a change in use with minimal effort. While the improvements to the existing space appropriate it for our purpose and bring it up to today’s standards, we have not rendered the building inadaptable for future use. All materials and architectural interventions play multiple roles in this environment. Stretched between the floor and the ceiling, the fabric of each treatment room recalls both tendons and skin tissue while enclosing the chiropractic treatment rooms. There is a visceral atmosphere that is the outcome of a dialogue between the fabric rooms, ephemeral and light, and the large open space with its more permanent material composition. The sculptural doors separating the massage rooms from the major space are made by molding series of ribs in skin like translucent material. These “Duchamp Doors” as we have come to call them are veils separating and reconnecting the rooms to the major space. While they provide acoustic and visual privacy, they hint at the activity within by allowing the light through. This adds to the mystery and drama of what happens behind while contributing to the overall atmosphere. This environment then, is as engaging for the eyes and mind as it is for the body and the sense of touch. Touch is perhaps the most important sense in the “art of healing” in relation to practice of chiropractic. Interestingly enough most visitors choose to touch the surfaces and feel this architecture. At the reception the candied-color green reception desk calls you in at once while housing the working day’s necessities. The light fixtures here recall the soft clouds on sunny summer days. The large space supports both the gallery functions and the daily work program, and in a short instant can be converted to an event space for larger groups of people. Here all we had to do was preserve and enhance an existing strong character, so we really just refinished what was there and kept it as clean as possible. Although the daily program calls for a reception area and five treatment rooms we had to devise a system to use the space in its entirety for periodic larger events. Therefore the convertible treatment rooms are very appropriate and functional on one hand and mysterious and ephemeral on the other. We address the exterior approach and entry as an event; we wanted people, regardless of their abilities, to move through a sensuous garden with soothing natural beauty, color and aroma as they entered. The Corten steel linear garden trough ends in a perforated tree-like shading device that shelters and welcomes the visitors while rejuvenating the old warehouse building and aligning with the accessible ramp entrance. The relative permanence of the old building and ephemerality of the new interruptions inform all the details and attachments between the new and the existing. Another noteworthy subject here is our ongoing collaborative relationship with our fabricators and artisans, as we consider them as an integral part of the research, design and development that goes into our projects. For us at LEADinc, projects come before our egos. Authorship is secondary to product quality and inviting expertise outside our comfort zone is what we do naturally. We were already aware that working with Nora Norby, a fabric specialist and fabricator from Banner Creations, and Robert Feyereisen, a general master fabricator and an architectural designer, the project would achieve a higher level. Collaboration for us is not about diluting or compromising the hard edges as much as it is about charging the outcome with know-how and abilities we do not possess when we approach uncharted territories. Trust and respect, the major necessities of creative collaboration, were in place with both Robert and Nora. We had had extensive working relationship with both. Nora and her team from Banner Creations collaborated with us on design development, fabrication and installation of the fabric rooms while Robert of Feyereisen Studios got involved in research, design development, fabrication and installation of the “Duchamp Doors”. We also engaged a newcomer Tristan Thiel, a brilliant young artist, who worked with us on the development, fabrication and installation of some lighting fixtures, the front desk, the entry doors and ultimately the furniture. Dr. Kari also did some of the work herself. Here the permanence, history and presence of the existing building are celebrated and enhanced by lightness, flexibility, ephemerality and mobility of our installation. This we propose, is a very sustainable approach to design because we can see the future reincarnations easily possible. – Ali Heshmati of Lead, Inc.

Upcoming Events

  • Protecto Wall VP Standard Installation Video

    Webinar

    Register for Free
  • How Right-Sized Plumbing Saves Money, Saves Water, and Protects Wellness

    Webinar

    Register for Free
  • Building Careers from the Ground Up: The IUPAT Floor Covering Apprenticeship and Training Program

    Webinar

    Register for Free
All Events