Apartment for a Photographer

Project Details

Project Name
Apartment for a Photographer
Architect
Muse Architects
Project Types
Single Family
Project Status
Built
Year Completed
2016
Size
3,300 ft²

Project Description

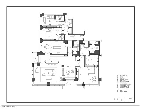
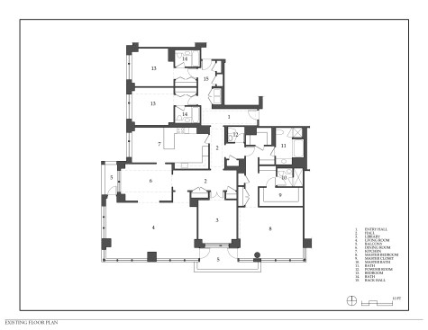
This project is the total renovation of a 3,300 sf waterfront apartment for a photographer/ art collector. The design of this residence is based on the response to the following two issues: SITE / VIEW Located on an upper floor of a condominium building in Georgetown, this apartment offers unobtrusive views of the Potomac River. To maximize this potential, we removed many interior walls to combine the living room, dining room, hall, and library into one large flexible space. Doors from the kitchen, hall and master bedroom were designed as full-height slabs that, when open, are flush with the deep jambs into this new room. All existing trim was removed and finishes were simplifies, reinforcing this sense of openness. Furniture was selected to have simple lines and was located as to not detract from the view across the room. OWNER’S PHOTOGRAPHY All walls that did not contribute to the view were rationalized to allow ample space for the owner’s photography collection. A significant number of built-in cabinets were also added to house her photography library. The ceiling plane of the apartment was manipulated to allow for recessed and cove lighting in response to the location and size of the photographs. The various ceiling heights also allowed for the addition of window treatment pockets and the design of a quieter, more efficient HVAC system.

Upcoming Events

  • Happier Homebuyers, Higher Profits: Specifying Fireplaces for Today’s Homes

    Webinar

    Register for Free
  • Sales is a Sport: These Tactics Are the Winning Play

    Webinar

    Register for Free
  • Dispelling Myths and Maximizing Value: Unlock the Potential of Open Web Floor Trusses

    Webinar

    Register for Free
All Events