Baltimore Residence

Project Details

Project Name
Baltimore Residence
Project Types
Custom
Project Scope
Renovation/Remodel
Shared By
Rafi
Project Status
Built
Style
Modern
Size
2,500 ft²
Room or Space
Architectural Detail

Project Description

2004 CHDA
Custom Home Less Than 3,000 Square Feet / Merit Award

Anyone who has built in a historic district knows how tough it can be to get even a conservative design approved. But if you want to tear down some existing buildings and replace them with something more modern, you’re really asking for a fight. Architect Rebecca Swanston won that battle, and the judges praised her effort. They declared the new residence in one of Baltimore’s oldest neighborhoods “a fantastic place to live.”

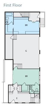
The new, mostly two-story brick home replaces two unhistorical structures—a 1920s storefront and a parking garage—and incorporates a historical three-story residence. The facade of that building remains intact, but the new construction presents a more contemporary face to the street. A group of stepped windows wraps the corner, lightening the building visually and literally. And along the eastern elevation, three bays (one enclosed and two with balconies) repeat the rhythm of bay windows common to the neighborhood. The overhanging bays diminish the importance of garage doors below. “We tried to be sensitive to the surrounding buildings with proportions and materials,” Swanston said.

To capture as much light as possible and to take advantage of views of Baltimore’s Inner Harbor, Swanston gave the second floor over to the living spaces. The bright, airy character of the open plan is established by a beautifully designed kitchen and large sliding glass doors that frame the view. The owner’s suite occupies the top floor of the original house and opens to a roof deck that has become her outdoor living room. The owner wanted two discrete bedroom suites for house guests, and so two more bedrooms flank the two-car garage on the first floor.

Upcoming Events

  • Build-to-Rent Conference

    JW Marriott Phoenix Desert Ridge

    Register Now
  • Builder 100

    Dana Point, CA

    Register Now
  • Protecto Wall VP Standard Installation Video

    Webinar

    Register for Free
All Events