Barrio Viejo House

Project Details

Project Name
Barrio Viejo House
Location
TucsonAZ
Project Types
Single Family
Project Status
Built
Year Completed
2016
Size
1,726 ft²

Project Description

Project
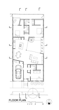
This 3BR 3BA house (1,726 SF on a 2,496 SF lot) sits on formerly vacant lot near downtown in Barrio Historico, one of Tucson’s most historically significant neighborhoods. Built on spec with the architect acting as general contractor, construction costs were less than $200 per square foot.

The exterior respects the predominant simple geometries of nearby historic structures, and is distinguished from them through restrained contemporary details. Inside the house is light-filled and rich in spatial variety, with a strong connection between indoor and outdoor spaces.

Place and Process
Tucson’s Barrio Historico is a National Register Historic District and a local Historic Preservation Zone. The project was subject to multiple public hearings and aggressive regulatory enforcement of design guidelines for the Historic Preservation Zone.

Besides compatibility considerations, the project was constrained by adjacency to a flood plain, limited access to utilities, and multiple easements. The small lot size and developed urban context added to challenge.

Sustainability
Sustainability considerations began with site selection. It is located on a previously vacant parcel in a walkable historic district, near restaurants, shopping, and downtown. Close to public transportation links, the project was designed with minimal onsite parking and hardscape. It promotes social responsibility.

The house was awarded green certification by City of Tucson through its Regional Residential Green Building Rating Program. This certification required the project to meet ecological stewardship practices including superior insulation, energy efficiency, water efficiency, and locally sourced materials.

Materiality + Craft
The limited palette of materials was selected for formal qualities and durability. Light is a primary design element. Crisp planes of stucco and gypsum board are intersected by concrete, glass, metal, and wood. The Tucson sun plays off these materials in a daily dance of light and shadow.

The interior is organized and inflected to provide a rich variety of spatial experiences through a variety of room shapes and ceiling heights. A central courtyard functions as a light well for the living space. The sun rakes downs a 15’ tall masonry wall on one side of the courtyard. Secondary light from skylights balances the “big light” of the courtyard. Skylight wells double as ventilation vectors for passive and active ventilation.

The street wall of the house was thickened to provide deep shadows at the windows and door. Custom made entry and garage doors meet functional and energy requirements as well as aesthetic considerations in the historic zone.

Upcoming Events

  • Protecto Wall VP Standard Installation Video

    Webinar

    Register for Free
  • How Right-Sized Plumbing Saves Money, Saves Water, and Protects Wellness

    Webinar

    Register for Free
  • Building Careers from the Ground Up: The IUPAT Floor Covering Apprenticeship and Training Program

    Webinar

    Register for Free
All Events