Black Metal & White Plaster

Project Details

Project Name
Black Metal & White Plaster
Location
ArlingtonVA
Project Types
Project Status
Built
Year Completed
2018
Size
400 ft²

Project Description

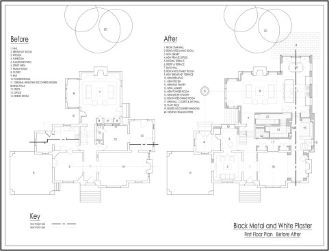
The challenge to respect the existing architecture while still delivering a modern design was achieved by taking cues from the existing Tudor. There, windows and door openings remained untrimmed and stark plaster walls contrast the original black metal windows. Like the existing, sharp, black elements contrast fields of white. With a ceiling pitch identical to the existing roof and chiseled dormers, a stark two-story untrimmed ceiling hover over the kitchen space referencing the existing homes plaster walls. Grid members in windows and on saw scored paneled walls and kitchen cabinetry mirror the machine age windows as do exposed steel beams and bolts. The exaggerated white field is pierced by an equally exaggerated 13 foot black steel tower that references the existing home's steel door and window members. Glass shelves in the tower further the existing window parallel. Even though it held enough dinner and glassware for eight, its thin members and transparent shelves defied its massive nature allowing light to flow through it, affording the kitchen unobstructed views and the feeling of continuous space. Finally, appreciation of nature was a design priority as the full glass at the end of the kitchen reveres a grouping of 50-year-old Hemlocks. At the opposite end of the kitchen, a window close to the peak looks up to a green roof.

Upcoming Events

  • Protecto Wall VP Standard Installation Video

    Webinar

    Register for Free
  • How Right-Sized Plumbing Saves Money, Saves Water, and Protects Wellness

    Webinar

    Register for Free
  • Building Careers from the Ground Up: The IUPAT Floor Covering Apprenticeship and Training Program

    Webinar

    Register for Free
All Events