BLUE TABLE POST

Project Details

Project Name
BLUE TABLE POST
Location
67 Dean StreetBrooklynNYUSA11201
Shared By
HShermanPR
Project Status
Built
Year Completed
2016
Size
2,200 ft²
Team
Architect/Acoustician: John Storyk
Project Manager: Romina Larregina

Project Description

BROOKLYN’S FIRST WORLD CLASS VIDEO/AUDIO POST PRODUCTION FACILITY
WSDG-Designed Cutting-Edge Facility Drawing Stars to Boerum Hill

Blue Table Post, an ultra-modern video/audio post-production complex with a high tech core and an artisan-based creative philosophy is already drawing stars to its top-flight suites. A long-time dream of triple Emmy-winning editor Oliver Lief, the complex was designed to support his creative talents and, those of Emmy-winning recording mixer/sound designer Rich Cutler and a team of leading colorist/vfx artists. Situated in a handsomely renovated five story building, in Brooklyn’s burgeoning Boerum Hill neighborhood, Blue Table Post is a collaboration by architects Craig Shillito, Bob Kellner and Chris Ithurburn, and Architectural /Acoustic consultants, WSDG-Walters-Storyk Design Group. The first project in the door was Michelle Obama’s CNN “We Will Rise” documentary directed by Tony Gerber, for which Blue Table handled all of the editing, sound-mixing, color grading, graphics and vfx. They had the pleasure of collaborating on site with Meryl Streep for nine days of intensive writing and VO.

“We acquired the building back in 1996, a time when the production community didn’t extend beyond the borders of Manhattan,” Lief says. “But now, not only is Brooklyn home to many production companies, it also draws clients from Manhattan.” Lief had been aware of WSDG’s studio design prowess for years, and when he was ready to move forward, he found their entire team extremely supportive. Commenting on that working experience he said, “WSDG Partner/Project Manager Romina Larregina is a consummate pro and detailed-oriented to the highest degree. She provided outstanding input and follow through from start to finish.”

Audio Mixing/Sound Design

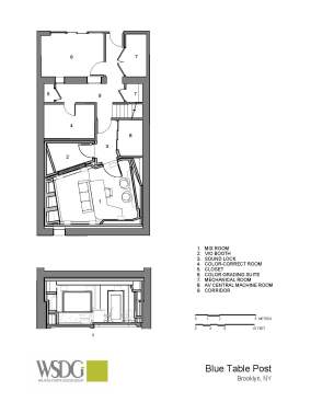
Set behind a walled-courtyard facing Dean Street, Blue Table Post occupies the building’s ground and lower floors. To insure a fully soundproof environment for the 3-D Dolby Atmos Mix Room, the original shallow cellar was excavated six feet to establish a spacious 250 sq. ft. screening room. The Mix Room is outfitted with an Avid S6 M-40 console and 20 speakers including 2 Focal Twin Be-6 Nearfield Monitors and 6 ceiling-mounted JBL 8350’s, the suite features a 5’ x 9’ screen and a full complement of high-end analog gear for VO recording in the 50 sq. ft. iso booth. All Avid systems are linked through Ardis Technologies’ award-winning DDP SAN. The suite is piloted by Rich Cutler, a veteran sound mixer/designer, with 30+ years of feature film, TV series and commercial credits.

Color Correction

The 130 sq. ft. Color Grading Suite features a Dolby PRM-4200 Monitor, an HP server, and shares a database with the neighboring 80 sq. ft. Color-Assist Room, which employs a Mac for transcoding footage and exporting ProRes renders. Synching the color-grading suite to the mix room enables clients to immediately preview their color graded 4K footage.

One flight up, three Mac-equipped edit rooms are designed to accommodate editors and assistants for large projects.

Acoustic Design Development

“We were fortunate to have been retained early on in the design stage in 2012, and construction began in 2014,” reports WSDG PM, Romina Larregina, “The 6’ basement excavation provided us with an extremely effective isolation environment, and we stipulated room-within-room construction throughout the complex. Rich Cutler can pump the volume up to 11 whenever necessary without disturbing any of the edit rooms. Crossley Acoustics’ Systems installation specialists provided impeccable connectivity. Visual contact between the VO Booth and the Mixing/ Screening Room is outstanding, and Oliver Lief tells us Meryl Streep was delighted with the studio’s comfort level and functionality.”

“We are all delighted with the way Blue Table Post turned out,” Oliver Lief concludes. “We’ve got a bright, modern, comfortable, and efficient environment, and how many NYC post houses have a fireplace and their own terraced garden? I’ve attended Post New York Alliance meetings, and have been encouraged by members’ enthusiasm for our new facility. They’ve emphasized the fact that Brooklyn has never had a post house with this level of technical and physical sophistication. The fact that we’re a 15-minute subway ride from Greenwich Village doesn’t hurt either. Blue Table Post is a serious option for feature film, TV series, documentary, commercial and music video projects.” Blue Table Post is currently hosting Lizzie a forthcoming feature film co-staring Chloë Sevigny and Kristen Stewart, with Sevigny portraying notorious ‘ax murderess’ Lizzie Borden.

Photos:
1. Blue Table Post 3D Dolby Atmos Mix Room
2. Blue Table Post Color Grading Suite
3. Blue Table Post Client Lounge
4. Blue Table Post Exterior view to lower courtyard
5. Blue Table Post VO Booth
6. Blue Table al fresco lunch l-t-r Meryl Streep, director Tony Gerber, BTP principal Oliver Lief, BTP project coordinator Maggie Graber
7. Blue Table Post exterior
8.-9. Presentation Drawings courtesy WSDG

Studio Photos by Tom Schaefer, Crossley Acoustics
Meryl Streep photo by Martha Adams

###

WSDG, a leading Architectural Acoustic Consulting/Media Systems Engineering firm, has collaborated on over 3500 audio /video facilities worldwide. Credits include Jimi Hendrix’s Electric Lady Studios (1969); NYC’s Jazz At Lincoln Center and, Le Poisson Rouge; broadcast facilities for The Food Network, ESPN, and WNET; major education complexes for NYU, The Art Institutes and Berklee College of Music, Valencia and Boston (2015 TEC winner). And, on media rooms for such corporate clients as: Hoffman La Roche, Cemex, and Sony. Studio projects include NYC’s Jungle City Studios for award winning engineer, Ann Mincieli, Green Day (CA), Jay-Z (NY), Aerosmith (Boston), Bruce Springsteen (NJ), Alicia Keys (NY), Paul Epworth’s The Church Studios (London), and film composers Carter Burwell (NY), A.R. Rahman (India), WSDG principals John Storyk, Beth Walters, Sergio Molho, Silvia Molho, Renato Cipriano, and Dirk Noy lecture frequently at universities and industry events, and contribute regularly to industry publications. WSDG has collaborated with such noted architects as Frank Gehry, Norman Foster and Phillipe Stark. WSDG is an 11-time winner of the NAMM TEC Award for outstanding achievement in Acoustics/Facility Design. The firm maintains offices in New York, Miami, Buenos Aires (Argentina), Belo Horizonte (Brazil) and Basel (Switzerland) with representatives in Barcelona (Spain), Moscow, Guangzhou (China), Florence (Italy), Mexico City, Los Angeles and San Francisco.

Upcoming Events

  • Happier Homebuyers, Higher Profits: Specifying Fireplaces for Today’s Homes

    Webinar

    Register for Free
  • Sales is a Sport: These Tactics Are the Winning Play

    Webinar

    Register for Free
  • Dispelling Myths and Maximizing Value: Unlock the Potential of Open Web Floor Trusses

    Webinar

    Register for Free
All Events