Braemer Hills Residence

Project Details

Project Name
Braemer Hills Residence
Location
EdinaMN
Project Types
Single Family
Project Scope
Renovation/Remodel
Project Status
Built
Year Completed
2014
Size
1,500 ft²

Project Description

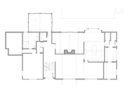
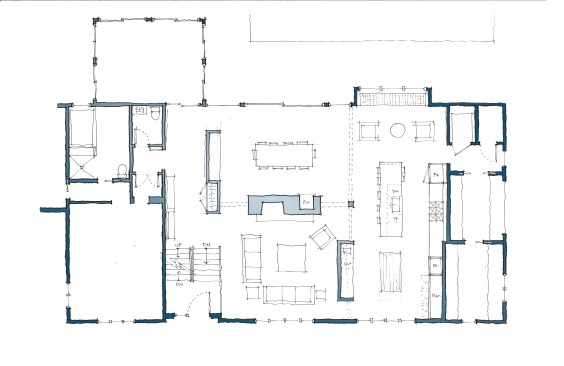
Eleven years ago, the clients bought a not-quite-perfect home in a perfect neighborhood, knowing that they would eventually remodel. Constructed in the 1970s, the home’s main floor was divided into four quadrants separated by floor-to-ceiling walls. The kitchen and family room were at the back of the house facing north and east, so the family felt as though they were living in a constant state of darkness. Two years ago, with both kids in college, the couple decided it was time to renovate. After bonding with a team of architects who shared their appreciation for modernism, the clients commissioned them to transform the main floor into a light-filled space for entertaining, cooking, and relaxing. To capture the natural light as it moves over the house, the architects removed every wall but one, and designed a single, narrow steel post to support the load. They moved the dining room to the back of the house and the living room to the front. Between the living and dining areas, the architects placed a dramatic, cantilevered open fireplace finished with Venetian plaster, and a floating hearth and bench made from gun-blued steel. They designed a long narrow kitchen with custom cerused walnut and white lacquered cabinets, an authentic, Italian-style wood-fired pizza oven, and a stunning center island of Calacatta marble measuring four feet wide by 21 feet long. Now that the renovation is finished, the house is a magnet for family and friends who love stopping by for glass of wine, a slice of pizza, and a dip in the swimming pool.

Upcoming Events

  • Protecto Wall VP Standard Installation Video

    Webinar

    Register for Free
  • How Right-Sized Plumbing Saves Money, Saves Water, and Protects Wellness

    Webinar

    Register for Free
  • Building Careers from the Ground Up: The IUPAT Floor Covering Apprenticeship and Training Program

    Webinar

    Register for Free
All Events