Brick City House

Project Details

Project Name
Brick City House
Location
DenverCO
Project Types
Single Family
Project Status
Built
Year Completed
2016
Size
4,600 ft²

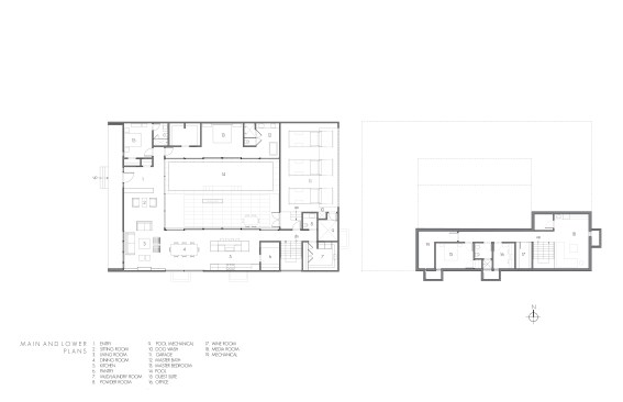
Project Description

The project is located in an older Denver neighborhood consisting primarily of small scale, brick bungalows with large entry porches. By organizing the program around the interior courtyard space, the building creates a defined street edge on the corner lot. Yet in opposition to many of the newer large scale and overly complex projects with generic building materials typically being constructed in the neighborhood recently, this project is a smaller, lower profile and more interpretive piece of architecture that respects the contextual urban form of its’ neighbors. It has a simple and refined palette of high quality materials consisting of handmade brick, walnut, plaster, and glass. In its urban setting with no large dominant views to the exterior, the house turns inwards toward the interior courtyard & pool with a connection to nature by focusing upwards on the sky. This concept is inspired by modern artists’ exploration into the connection of the sky, earth, and proportion.

Upcoming Events

  • Protecto Wall VP Standard Installation Video

    Webinar

    Register for Free
  • How Right-Sized Plumbing Saves Money, Saves Water, and Protects Wellness

    Webinar

    Register for Free
  • Building Careers from the Ground Up: The IUPAT Floor Covering Apprenticeship and Training Program

    Webinar

    Register for Free
All Events