Bridge House

Project Details

Project Name
Bridge House
Project Types
Custom
Project Scope
New Construction
Shared By
mkrochmal
Project Status
Built
Year Completed
2013
Size
4,800 ft²

Project Description

Custom / More than 3,000 Square Feet / Merit
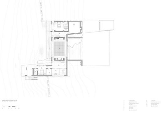
Inspired by a wood-covered bridge spanning the nearby falls, this house springs from a rolling hill. Joeb Moore, AIA, organized it as two L-shaped pieces that lock together to form a living/dining bridge over an open meadow, and then turn to contain a master suite that floats 15 feet in the air. “Look to the right on the bridge, and the hill under you is landscaped with flowers,” Moore says. “To the left is a much more distant view to the Housatonic River and Kent Falls.” That “viewing chamber” idea repeats in cross-section. Where the two volumes lock, they produce a skylit gap on each side of the chimney masses, creating a clear view through the house. Our judges praised the building as a sculptural object that “engages beautifully with the site and topography.” —Cheryl Weber, LEED AP

Upcoming Events

  • Modernize Your Model Homes with Music

    Live Webinar

    Register for Free
  • Happier Homebuyers, Higher Profits: Specifying Fireplaces for Today’s Homes

    Webinar

    Register for Free
  • Sales is a Sport: These Tactics Are the Winning Play

    Webinar

    Register for Free
All Events