Bridgehampton House

Project Details

Project Name
Bridgehampton House
Location
BridgehamptonNY
Project Types
Project Scope
New Construction
Project Status
Built
Year Completed
2018
Size
7,360 ft²

Project Description

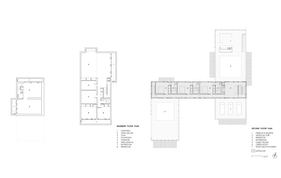
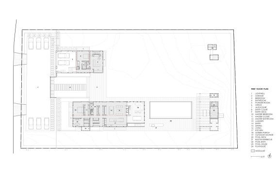
This custom modular home was completed using a design methodology developed and refined over fifteen years of research and experimentation in prefabricated construction. Rather than try to reinvent modular production, this systematic approach leverages existing prefabrication methods by understanding and working within factory limits to efficiently design a home specific to the client and the site. Here, the client's brief called for a casual, light-filled summer retreat, centered on maintaining a fluid indoor-outdoor connection with exterior spaces for lounging, playing, and entertaining. While the house is much larger than the cottages that line the street, it was important to the clients to be a good neighbor. So, the main level, composed of four modules, is broken into two smaller volumes and clad in weathered gray cedar. Without a formal front door, a welcoming tree-lined auto court leads to an entry deck. This covered deck is created by a spanning second story, composed of two more modules, that defines the threshold between public and private. Pulling apart the house's volumes generates opportunities for permeability between inside and outside. With sliding doors abundant and 5800SF of continuous decks wrapping the house, it becomes just as natural to utilize outdoor connections between living spaces as indoor ones. Inside, the clients wanted a minimal, white interior that would be light and bright, but also hold up to their three young kids. White acrylic built-ins provide effortless storage to easily hide toys, shoes and beach gear. Cedar ceiling and white oak flooring adds warmth, balancing the white material palette. Leveraging the factory, about eighty-percent of the house was built off-site. The modules were set by a crane on a conventional basement in two days, leaving systems hookups, minimal interior finish work, and exterior work to be completed by a local contractor.

Upcoming Events

  • Protecto Wall VP Standard Installation Video

    Webinar

    Register for Free
  • How Right-Sized Plumbing Saves Money, Saves Water, and Protects Wellness

    Webinar

    Register for Free
  • Building Careers from the Ground Up: The IUPAT Floor Covering Apprenticeship and Training Program

    Webinar

    Register for Free
All Events