Buckley School-Quinn Martin Building

Project Details

Project Name
Buckley School-Quinn Martin Building
Location
3900 Stansbury AveSherman OaksCA91403
Project Types
Education
Shared By
Alain
Project Status
Built
Year Completed
2017
Style
Modern
Size
8,900 ft²
Certifications & Designations
Other
Team
Principal: Jeffrey Kalban
Project Architect: Alain Yotnegparian

Project Description

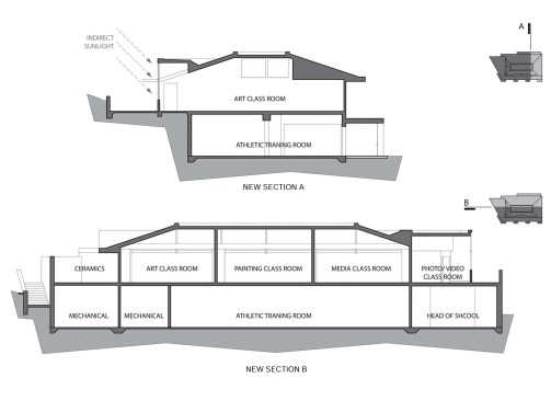
The Quinn Martin Building is a remodel and repurposing of a 7,170 square foot, faux Spanish 1960s 2 story educational building on a tight hillside site. The upper floor classrooms have on-grade access from the west.

The site is hemmed in by a roadway and required ADA parking, only allowing a 1,730 square foot addition on the north side that accommodates the Head of School’s office on the lower level and an additional classroom above.

The roof was cut and a high glazed front was added bringing in lots of natural light. The existing upper level classrooms are now the school’s visual arts center with ceramics, painting, sculpting, media arts and animation facilities.

The existing lower level was opened up to house the Athletic
Department’s workout/weight room.

Result: a light and engaging visual arts facility that has rejuvenated the school’s art program and a dynamic training room that has captivated the student athletes.

Upcoming Events

  • Happier Homebuyers, Higher Profits: Specifying Fireplaces for Today’s Homes

    Webinar

    Register for Free
  • Sales is a Sport: These Tactics Are the Winning Play

    Webinar

    Register for Free
  • Dispelling Myths and Maximizing Value: Unlock the Potential of Open Web Floor Trusses

    Webinar

    Register for Free
All Events