BV20

Project Details

Project Name
BV20
Location
2418 16A Street SWCalgaryABCANADAT1T 4K5
Project Types
Multifamily
Project Scope
New Construction
Shared By
MODA
Project Status
On the Boards/In Progress
Style
Modern
Team
Architect: Ben Klumper
Architect: Dustin Couzens
Architect: Nicholas Tam
Technician : Paul Mowatt

Project Description

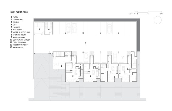
BV20 reconsiders the stagnant multi-family typology proliferating much of Calgary’s residential market. Formally, the architecture builds upon the inner-city neighbourhood of Bankview’s hilly typography, as well as its diverse demographic and community oriented lifestyle.

Typical of most of our projects we mine the potential of the banal. We dissect the design brief, by-law and building code requirements, site restrictions, budget, etc. to find hidden potential that can begin to inform our design. With bv20 we discovered multiple challenges and opportunities such as 20 feet of elevation change from the north west to the south-east corner of the site, restrictive setbacks and height limits, stringent landscape and amenity space requirements and a ‘community-centric’ ARP (Area Redevelopment Plan) that advocated for vibrant social spaces and ‘knowing your neighbour’. Capitalizing on the elevation change, the parkade resides at grade, pushing the rear units of the building up resulting in a terraced form that helps to democratize both light and views for most the units.

We began developing massing models that took advantage of the site’s steep slope by placing the parkade at grade, which pushes the rear units of the building up resulting in a terracing effect that helps to democratize light and view for most of the units. We shifted the density between the north and south property lines to accommodate differing height restrictions, creating essentially three ‘bar buildings’ that could be programed with different housing types. Offsetting and sloping these three bars provides for a generous exterior amenityscape. The requisite landscape requirements and amenity spaces intertwine into a vibrant social-scape that encourages spontaneous interactions and fosters opportunities for communal gardening, walking the dog, or just getting a breath of fresh air. This amenityscape, while satisfying the stringent landscape and amenity space requirements, introduces urban horticulture in the form of private gardens, vegetative roofs, apiaries, etc. at a scale previously unknown to inner-city living in Calgary.

Celebrating the fact that the building challenges the typical four-storey box by incorporating three ‘topographical bars’, the building’s material palette accentuates this condition by alternating between weathered cedar siding and vertical aluminum grating. Various varietals of climbing foliage will eventually cover this vertical screen, providing both privacy for some units, as well as points of interest along the social-scape.

Upcoming Events

  • Protecto Wall VP Standard Installation Video

    Webinar

    Register for Free
  • How Right-Sized Plumbing Saves Money, Saves Water, and Protects Wellness

    Webinar

    Register for Free
  • Building Careers from the Ground Up: The IUPAT Floor Covering Apprenticeship and Training Program

    Webinar

    Register for Free
All Events