Cabin on Pelican Lake

Project Details

Project Name
Cabin on Pelican Lake
Location
Pelican RapidsMN
Project Types
Single Family
Project Status
Built
Year Completed
2015
Size
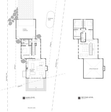
2,800 ft²

Project Description

Every once in a while, a client comes along that wants to talk about design. In this case, the Cabin on Pelican Lake embraces that scenario and entertains a client that spent their entire life in the design business. At the same time, they have had the opportunity to embrace their Scandinavian heritage through travel and various business opportunities, influencing their design sensitivities for simple, yet beautifully executed ideas: platonic shapes (triangle gables, cube forms and barrel volumes), primary colors and minimalistic materiality. Equipped with a sketch of “three colored cubes” and a photo of a traditional Oceanside fish camp, the client challenged the design team to “make something of this.” Graphic in nature, bold in form and “the brightest color in the box,” the Cabin on Pelican Lake is a collaborative design effort, celebrating the very best in design.

Upcoming Events

  • Protecto Wall VP Standard Installation Video

    Webinar

    Register for Free
  • How Right-Sized Plumbing Saves Money, Saves Water, and Protects Wellness

    Webinar

    Register for Free
  • Building Careers from the Ground Up: The IUPAT Floor Covering Apprenticeship and Training Program

    Webinar

    Register for Free
All Events