Carmel Place

Project Details

Project Name
Carmel Place
Location
New York CityNY
Project Types
Project Scope
New Construction
Shared By
katie_gerfen
Project Status
Built
Year Completed
2016
Size
35,000 ft²
Team
Principal: Eric Bunge
Principal: Mimi Hoang
Associate, Project Manager: Ammr Vandal

Project Description

2017 AIA Institute Honor Award Winner in Architecture

Once upon a time, New York City developers could build apartments almost as small as they pleased, no matter how inhumane or unsanitary the result. That all ended with a series of civic reforms in the 1980s that stipulated 400-square-foot minimums—a giant step forward, at least until our own time, when those minimums began to seem a little too generous given the cost of living in a city growing ever more crowded. Now, under a new zoning initiative, the first of the city’s legal micro-apartments has been completed.

Designed by Brooklyn-based nArchitects, Carmel Place is located in Manhattan’s Kip’s Bay neighborhood, and features 55 studios in the 260- to 360-square-foot range. Twenty-two of these were designated as affordable units—14 for applicants through the city, and eight for supportive housing through Veteran’s Affairs. From start to finish, the project has been an experiment in efficiency, with the modular units prefabricated in the Brooklyn Navy Yard and then trucked to the site and assembled—all nine floors—in about four weeks.

Far from the squalor that the old regulatory measures were meant to combat, the apartments at Carmel Place are airy and elegantly minimal, with 9-foot-plus ceilings and lofted storage to keep floors and surfaces clutter-free. The architects’ choice of a simple, setback envelope means that the same housing model could easily be adapted to almost any site, anywhere in the city, and the low-key façade treatment allows the building to blend in with the neighborhood. – Ian Volner

To see the rest of ARCHITECT’s coverage of the 2017 AIA Institute Honor Awards, click here.

2016 Residential Architect Design Awards
Affordable Housing: Citation

More than 60 percent of New York City’s households have one or two people, but the supply of studio and one-bedroom apartments is limited. Enter Carmel Place, designed by nArchitects—the city’s first all micro-unit apartment building. Fifty-five loft-style units, ranging from 260 to 360 square feet, sit in four slim “mini-towers” of unequal height, which were built using modular construction. Forty percent of the units are earmarked as affordable, while the rest are market rate. Units are designed to feel spacious despite their small dimensions, with 9-foot-8-inch ceilings and clever features like a fold-down kitchen table/counter and linear storage loft. – Amanda Kolson Hurley

Project Credits
Project: Carmel Place, New York
Client: Monadnock Development
Design Architect: nArchitects, New York . Eric Bunge, AIA, Mimi Hoang, AIA (principals), Ammr Vandal, AIA (project manager), Tony-Saba Shiber, Daniel Katebini-Stengel, Cheryl Baxter, Albert Figueras, Prathyusha Viddam, Gabrielle Marcoux, Amanda Morgan, AIA, Zach Cohen, Matthew Scarlett, AIA, Matthew Wilson, Alexis Payen (project team); Christopher Grabow, Alex Tseng, Nancy Putnam (project team, competition phase)
M/E Engineer: Abraham Joselow
Structural Engineer: De Nardis Engineering
Civil Engineer/Landscape Architect: Langan Engineering
Construction Manager/General Contractor: Monadnock Construction
LEED Consultant: Taitem Engineering
Code Consulting: JM Zoning
Consulting Architect (competition phase): Willis DeLaCour
Marketing Consultant: Corcoran Sunshine
Graphic Design: Project Projects
Builders (modular units): Capsys Corp.
Size: 35,000 square feet
Cost: $12.95 million

FROM THE ARCHITECTS:

Carmel Place (formerly known as MY MICRO NY), winner of the adAPT NYC competition, optimizes modular construction to provide the city with housing solutions for the expanding small household population. Exterior and interior spaces were designed with the goal of creating a systemic new paradigm for housing in NYC and other cities with similar demographic and affordability challenges. The project is approaching completion, scheduled for Spring of 2016.

Carmel Place (formerly known as My Micro NY) is the winning proposal in the adAPT NYC competition sponsored by the NYC Department of Housing Preservation & Development (HPD). Former Mayor Michael R. Bloomberg and HPD Commissioner Mathew M. Wambua announced on January 22nd, 2013, that the Carmel Place development team has been chosen through a competitive Request for Proposals, which received the largest response to date for an HPD housing project.

The adAPT NYC competition was created as part of the administration’s New Housing Marketplace Plan to introduce additional choices within NYC’s housing market and accommodate the city’s growing small household population. With 1.8 million small households and only 1 million suitable apartments, many New Yorkers are left without proper housing options. Carmel Place proposes micro-unit living units, that are smaller than the currently allowed 400sf for new construction, albeit with increased and more integrated strategies for shared amenities. Living by yourself does not mean living alone.

The design team’s biggest challenge was to create a potentially new housing paradigm that could on the one hand be systemically replicated, and that on the other would produce a big social impact, within a very tight set of regulatory and economic constraints. Understanding that residents of small apartments necessarily live across different scales, the design of the building’s exterior form, distribution of amenities, and interiors of the units, followed a logic of nested scales.

The Design Team selected modular construction as a construction method, in keeping with the visionary social and urban goals of the project and its nature as a prototype for new housing approaches for the city. Modular construction offered the design and developer team advantages in simultaneous construction of foundations on site and modules in the factory, as well as a fast erection (4 weeks). The modules were pre-fabricated locally in the Brooklyn Navy Yard while foundation work occurred on site, and then transported over the Brooklyn Bridge for stacking. Splitting the construction process greatly reduced on-site construction noise and neighborhood disruption.

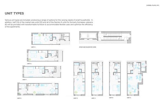
In addition, the project benefited from a higher level of quality of interior finish and a precision of 1/8” tolerance, necessary due to the site’s very small footprint (45’x105’) and a need to fit 8 units per typical floor. Various unit types were possible to build and transport, producing a range of options for the varying needs of small households.

By incorporating setbacks as a governing design logic, Carmel Place could in principle be adapted to many sites, at a range of heights and floor area ratios, and at nearly any location in a block. The 55 micro-units, ranging from 250 to 370 square feet, achieve affordability for low- and middle-income households, in part through its use of modular design to significantly shorten project schedule.

The interior of the units were designed to create a sense of spaciousness, comfort, and flexibility. Within a compact footprint, the architect and developer team prioritized providing residents with as much volume, light, air and views out to the neighborhoods as possible. High ceilings over 9’-6”, large exterior sliding doors, and Juliet balconies maximize the perceived volume of space, and provide a strong connection to activity on the street and park below. Additional large storage space is located in the added height above the bathrooms, which, combined with an efficiently designed kitchen, provides residents with a highly functional and flexible interior. 40% of the 55 micro-units, ranging from 250 to 370 square feet net, are affordable for low- and middle-income households.

Various unit types are included, producing a range of options for the varying needs of small households. In addition, half (16) of the market rate units (32) and all of the Section 8 units for formerly homeless veterans (8) will be provided with transformable furniture to accommodate flexible uses and optimize the efficiency of the apartments.

Shared amenities will include a gym at ground floor level, a small lounge, den, community room and public roof terrace, bicycle storage, tenant storage room and separate storage lockers dispersed throughout the building, and a small garden. Placement of the various shared amenities throughout the building strategically encourages residents to interact with their neighbors throughout their daily routine – micro-living means living beyond the four walls of your apartment.

Upcoming Events

  • Protecto Wall VP Standard Installation Video

    Webinar

    Register for Free
  • How Right-Sized Plumbing Saves Money, Saves Water, and Protects Wellness

    Webinar

    Register for Free
  • Building Careers from the Ground Up: The IUPAT Floor Covering Apprenticeship and Training Program

    Webinar

    Register for Free
All Events