Casa Puerto Cayo

Project Details

Project Name
Casa Puerto Cayo
Project Types
Project Scope
New Construction
Shared By
Ashleigh Popera
Project Status
Built
Year Completed
2016
Size
7,018 ft²

Project Description

FROM THE ARCHITECTS:

The Puerto Cayo House is a project where time passes slowly and life is enjoyed at its best. A place that invites us to find our essence and leads us to understand that we are part of a whole, part of nature, part of the universe.

The project arises from the need of a couple of foreigners looking to change their lifestyle, and finding that change on the coasts of Puerto Cayo, Ecuador—the perfect place to achieve it. A dry and sunny climate most of the year, the blue sea, clear sky, nice people, and delicious gastronomy are factors that characterize this small fishermen’s town, located on the coasts of the Manabi province.

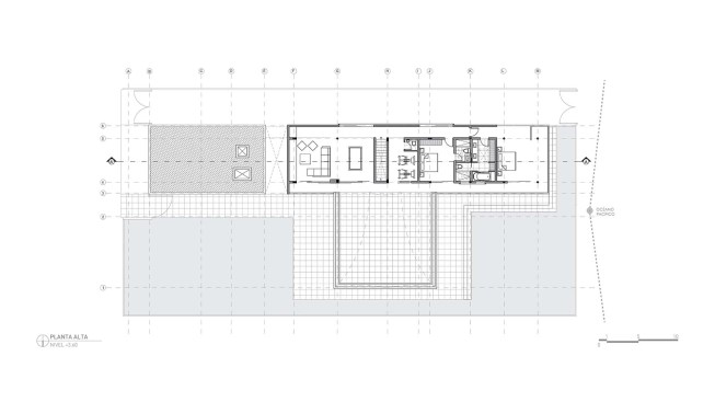
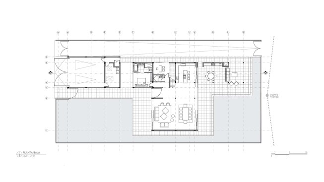
On a 1.250 square meter piece of land totally privileged by its location in front of the sea, the house is implanted in such a way that it responds to the natural geography of the coastline, directing the line of sight to the northwest. The house is organized according to two principal axes, one that points towards the beach and forms the first volume containing the private spaces, and a perpendicular axis that contains the social areas and relates directly to its natural surroundings.

A series of wooden brise-soleils allow a dynamic facade that is always in movement. One of the intentions of the wood elements is to protect the house inhabitants of the intense equatorial sun and also, to keep the house closed during three months of the year in which it will remain uninhabited. These wood elements, along with the white walls, the marble travertine and the surrounding nature, create the perfect combination to make the House Puerto Cayo a truly inspiring space.

This description has been lightly edited for clarity.

Upcoming Events

  • Happier Homebuyers, Higher Profits: Specifying Fireplaces for Today’s Homes

    Webinar

    Register for Free
  • Sales is a Sport: These Tactics Are the Winning Play

    Webinar

    Register for Free
  • Dispelling Myths and Maximizing Value: Unlock the Potential of Open Web Floor Trusses

    Webinar

    Register for Free
All Events