Cascade High School Expansion

Project Details

Project Name
Cascade High School Expansion
Location
Cascade Iowa
Project Types
Education
Project Scope
Addition/Expansion
Shared By
Jill
Project Status
Built
Year Completed
2014
Size
43,090 ft²

Project Description

FROM THE ARCHITECTS:

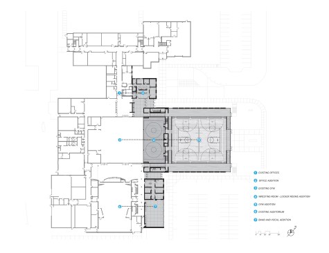
For many rural communities, the school and its activities are the heartbeat of the community. The significance of this relationship is amplified for this high school which is located in the largest geographic school district in Iowa (555 square miles). With the addition of new administrative, gymnasium, and music spaces, this project strengthens the relationship between the school and its community.

The new program elements are located adjacent to similar existing functions to support the school’s existing organization. They unify the school’s primary façade and update a building that had seen many additions over the past four decades.

A deliberate use of clear and translucent exterior materials creates a visual dialogue between the school’s activities and the surrounding town. Daytime functions in the gymnasium become an extension of the park it faces. Clear glazing in the sunken gym connects students to the exterior at street level. In other areas the glazing is combined with translucent polycarbonate panels to create a pleasant naturally lit learning environment. At night, as music and sports activities begin, the glazing becomes a beacon to the town – and those passing on the highway – as the building emits a soft glow announcing the activities within.

Upcoming Events

  • Protecto Wall VP Standard Installation Video

    Webinar

    Register for Free
  • How Right-Sized Plumbing Saves Money, Saves Water, and Protects Wellness

    Webinar

    Register for Free
  • Building Careers from the Ground Up: The IUPAT Floor Covering Apprenticeship and Training Program

    Webinar

    Register for Free
All Events