Chambre de Métiers et de l’Artisanat

Project Details

Project Name
Chambre de Métiers et de l’Artisanat
Location
LilleFrance
Project Types
Mixed-Use
Project Scope
New Construction
Shared By
Madeleine D’Angelo
Project Status
Built
Year Completed
2019
Style
Modern
Team
Project Team for KAAN Architecten: Christophe Banderier, Sebastian van Damme, Paolo Faleschini, Raluca Firicel, Michael Geensen, Renata Gilio, Kees Kaan, Maud Minault, Hannes Ochmann, Vincent Panhuysen, Ismael Planelles, Ana Rivero, Dikkie Scipio
Project Team for PDAA: Jean-Pierre Pranlas-Descours, Gustav Ducloz, Maryléne Gallon, Brieuc Le Coz, Anne Roullet

Project Description

FROM THE ARCHITECTS:

(September 2019) Following the launch of its Paris outpost, Dutch architecture firm KAAN Architecten together with French office PRANLAS-DESCOURS architect & associates (PDAA), present the new Chambre de Métiers et de l’Artisanat (CMA) Hauts-De-France in Lille (France). The winning entry of an international competition for Eurartisanat campus, this building works as a new gateway of the city and is part of its urban development initiated in the Eighties with Euralille district, Euratechnologies and Eurasanté.

The CMA is set along the edge of the former Seventeenth Century Vauban fortification, now replaced by a high-speed ring road. The northern border of the site is defined by a railway line and the botanical garden — Jardin des Plantes de Lille. To the south, Rue Abélard defines the perimeter of a wider masterplan area designed by KAAN Architecten and PDAA, and comprising of CMA headquarters, a future complex of five buildings and a lush park spanning the site as an extension of the nearby garden.

With its minimalist esthetics and elegant transparency, the monolithic building gives an embracing and protective gesture towards the surrounding nature, reinforcing the dialogue between the diverse elements of the area.

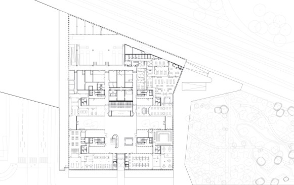
In broad horizontal strokes, the CMA spreads over three floors rising from a square shaped footprint of 80 by 80 meters, providing both educational functions and spaces dedicated to supporting craft business. Each floor holds a strong connection to the green landscape: on the first floor, KAAN Architecten and PDAA have designed a prominent cantilever that frames a scenic view of Lille and the gardens.

The building features two public squares on different levels. On the ground floor is the new Place des Artisans (south), while a large terrace to the north of the first floor aligns the project with Rue du Faubourg d’Arras and connects to it with a bridge. Both public entrances are linked by an enfilade of representative spaces: southern square, entrance hall, the auditorium and its foyer, as well as a wide opening overlooking the north terrace. Moreover, each entrance serves the two main architectural realms: the apprentice training centre and offices devoted to supporting craft business procedures.

The CMA is symmetrically organized around six patios that provide natural light for most circulation spaces and divide the building into four clusters housing different realms and spanning through the whole three levels. Functions vary from local and regional administration to research and educational facilities (hairdressing school, cooking school, laboratories, classrooms). The new building acts as a hub for both the Chambre and the associated training schools, which had been previously scattered throughout the historic city centre of Lille.

In order to interact with the urban fabric and the surrounding landscape, the architects have paid great attention to the use of natural materials: glass and stone. The ground and second floors are wrapped by a modular double glass facade that ensure climate control and quality acoustics. Spanning the full floor height, each module features an inner polished aluminum window which can be opened and a fixed outer glass panel with a reflective print that gradually fuses to create a fully transparent zone at eye level while blending the building into nature.

Moreover, the patio façades which feature large polished aluminum window frames are clad in Vals Quartzite, a very solid, compact and frost-resistant stone from Switzerland. The same stone has been used on the patio floors as well as in the entrance hall to enliven the link between exterior and interior.

Through its solid materiality, CMA aims to both articulate, absorb and reflect the surrounding landscape while at the same time standing out as a new iconic element, an inhabited landscape dedicated to the public sphere.

The Chambre de Métiers et de l’Artisanat, together with ISMO – Institute des Sciences Moléculaires in Orsay, represent two of the recent projects designed by KAAN Architecten in France. Two large mixed-use complexes are also in the final phase of construction: one close to EuraTechnologies area in Lille, the other in the ZAC Bottière-Chénaie in Nantes. Meanwhile, an office complex in Aubervilliers, Paris, is currently at design stage and is set to revitalize the former logistics area at the borders of the city.

Alongside the CMA, PDAA has recently delivered the Black Diamond project consisting of a parking lot, offices and sports facilities, that received the ADC architecture prize for the mixed-use building of the year. PDAA is currently developing several projects on both architectural and urban scales, such as the Satory development in Versailles, one of the main projects in the Greater Paris area (550.000 sqm of urban project, 12 hectares of park and test tracks).

Project Credits:
Project: Chambre de Métiers et de l’Artisanat
Architect: KAAN Architecten – PRANLAS-DESCOURS architect & associates
Project team: Christophe Banderier, Delphine Bresson, Louise de Chatellus, Sebastian van Damme, Gustav Ducloz, Paolo Faleschini, Raluca Firicel, Marylene Gallon, Michael Geensen, Renata Gilio, Julie Heathcote-Smith, Kees Kaan, Maud Minault, Hannes Ochmann, Vincent Panhuysen, Fabien Pinault, Ismael Planelles, Jean Pierre Pranlas-Descours, Ana Rivero Esteban, Anne Roullet, Dikkie Scipio, Marianne Seyhan
Client: Chambre de Métiers et de l’Artisanat Hauts-De-France, Lille
Structural advisor: EVP Ingénierie, Paris
Financial advisor: Martin & Guiheneuf, Paris
Installation and Sustainability advisor: Martin & Guiheneuf, Paris
Façade advisor: T/E/S/S atelier d’ingénierie, Paris
Kitchen installation advisor: Creacept restauration, Lezennes
Site work: URBATEC, Bussy-Saint-Georges
Landscape: TN+, Paris
Control office: DEKRA Construction, Lesquin
Structure: Demathieu et Bard, Marcq en Baroeul
Façade: PMN, Lesquin
Interior fixtures, doors, windows: SDI, Haubourdin
Baswaphon ceilings: Entreprise Michel, Saint Brévin-les-Pins
Technical floors: Comey SAS, Villeneuve-sur-Yonne
Painting: Cabre, Courrières
Stone floors: Surface carrelage, Wattrelos
Wood floors: Parqueterie de la Lys, La Chapelle-d’Armentières
Electricity: Cegelec Nord Tertiaire, Wasquehal
Plumbing, ventilation and heating: MGC, Templemars
Elevators: Schindler, Wambrechies
Fixed furniture: Atelier 41, Saint-Calais
Kitchen equipment: Cofrino, Lambersart
Site work: COLAS, Nancy

(May 2015) KAAN Architecten, together with PRANLAS-DESCOURS Architect & Associates, officially announces the start of
construction of the Chambre de Métiers et de l’Artisanat (CMA) in Lille, the winning project of an international
competition held in 2007.

The Chambre de Métiers et de l’Artisanat is located at the edge of the old city fortification of Lille, in correspondence of one
arterial road defining the city center and the new suburban areas. The building is surrounded by a distinctive landscape featuring
infrastructure of rail and motorway, embankments, lush greenery with diverse botanical species and artificial topography, in a
mix of landscape and horizontality.

The design developed in collaboration with PRANLAS-DESCOURS Architect & Associates (Paris, France), is based on the site’s
history and geography and merges sustainability, landscape, architecture and interior design. The monolithic look of the building
results from emphasizing horizontality and highlighting the site on two levels: the landscape and the surrounding neighborhood.
The multipurpose building has three main floors with various program: a public ground floor, an educational first floor and a
second floor with office spaces enclosing the auditorium at the core of the building. The different areas are separated one from
the other by two independent level entrances, by an articulated program division and a clear circulation system giving shape to a
solid and simultaneously compartmentalized building.

The auditorium can be used in various ways as well as the magnificent main lobby. Modern and robust materials have been
used, while the spaces have been designed with special attention to the human scale. CMA’s transparency and integration of
green patios drive visitors through the building thanks to an easy and natural way-finding.

On Friday May 22nd, 2015 from 2.30pm in Rue Abélard (Lille, France) the first stone laying ceremony will be held together with
the presentation of the project in the presence of the Ministre du Travail, de l’Emploi et du Dialogue social, M.François
Rebsamen, the Président de la Chambre de Métiers et de l’Artisanat du Nord-Pas-de-Calais, M.Alain Griset and the architects
Kees Kaan and Jean-Pierre Pranlas-Descours.

The building will be delivered in March 2017. 

Upcoming Events

  • Protecto Wall VP Standard Installation Video

    Webinar

    Register for Free
  • How Right-Sized Plumbing Saves Money, Saves Water, and Protects Wellness

    Webinar

    Register for Free
  • Building Careers from the Ground Up: The IUPAT Floor Covering Apprenticeship and Training Program

    Webinar

    Register for Free
All Events