Christian Brothers University

Project Details

Project Name
Christian Brothers University
Location
MemphisTN
Architect
Archimania
Project Types
Shared By
archimania
Project Status
Built
Year Completed
2017

Project Description

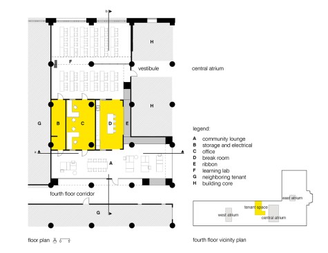
The program for the project is a collaborative learning outpost for a local university within a large renovated warehouse located prominently in the center of the city.

The university desired flexibility for various types of events and group sizes. The spaces needed to be easily and quickly reconfigurable – students and staff required the flexibility or reorganizing of their arrangement over the course of a single event to facilitate project and team-based work. The relationship between two elements, a ‘ribbon’ and a ‘box,’ organize the design. The ribbon winds around the perimeter of the space and moves from floor to ceiling to support gathering and building system functions. At some locations, the ribbon holds pipes and ducts, and in other areas, it translates into a bench for gathering and lounging. The box contains shared support functions such as storage, offices, and break room, while also helping to divide event spaces.

A range of functional surfaces that are writeable, projectable, and tack-able clad the space, facilitating collaboration. The palette of neutral grays, whites, blacks, and natural wood provides consistency, while the furniture is continually rearranged, contrasted by the energetic yellow cladding of the ‘box.’

Upcoming Events

  • Happier Homebuyers, Higher Profits: Specifying Fireplaces for Today’s Homes

    Webinar

    Register for Free
  • Sales is a Sport: These Tactics Are the Winning Play

    Webinar

    Register for Free
  • Dispelling Myths and Maximizing Value: Unlock the Potential of Open Web Floor Trusses

    Webinar

    Register for Free
All Events