Project Description
2003 CHDA
Custom Kitchen / Merit Award
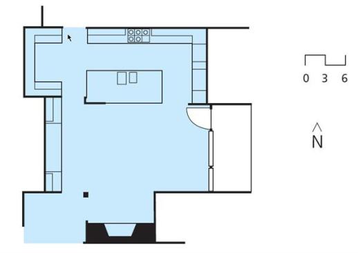
Architect John Senhauser knows the value of a well-designed house. “It’s like owning a classic jacket,” he says about his renovation of a 1968 house by Cincinnati Modernist Carl A. Strauss. “It’s perfectly serviceable, but the lining is worn. So you go back and put a new lining in.”
The “new lining” he created for the home’s kitchen results from a series of small but effective moves. Senhauser didn’t want to change the room’s footprint, but the space felt cramped and dark. So he raised most of the ceiling by a foot. He also removed a former laundry room and the old pantry to make space for a new butler’s pantry, and filled in one of two doorways on the north side of the kitchen to allow for more counter space. Then he transformed a floor-to-ceiling peninsula into an island, creating a second opening from the breakfast room into the kitchen. Now light and views flow in through the breakfast room windows, over the island and through the new doorway.
Senhauser chose materials that maximize natural light and integrate the kitchen with the rest of the house. “We used no paint in this house, except for the white-painted brick,” he says. “All of the color comes from the materials themselves.” Cases in point: the mottled, gray-green slate floor, black-and-white-speckled granite countertops, and a light-green glass backsplash. Senhauser did break his own rule on color by staining the cabinets with a blue-gray aniline dye, which helps unify them with the stainless steel appliances. But the judges didn’t mind. “They truly brought it into today,” said one. “It was a nice house in the 1960s, and it’s a nicer one now.”