Clearview Pavilion

Project Details

Project Name
Clearview Pavilion
Location
King CityOntario
Architect
Amantea Architects
Project Types
Outbuilding
Project Status
Built
Size
680 ft²
Team

Project Description

2018 Builder’s Choice & Custom Home Design Awards
Accessory Building, Grand

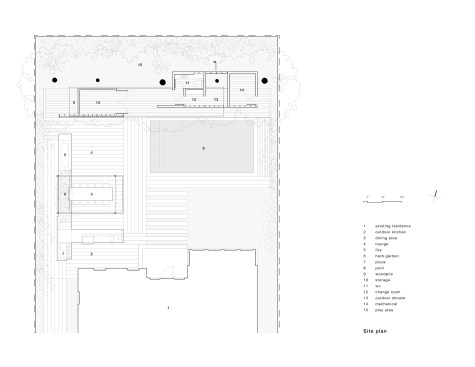
A row of towering, century-old Norway spruce trees defined the rear yard of an existing residence in King City, Ontario, but their natural beauty was compromised by the unfortunate view of adjacent houses under their canopy. Toronto architect Michael Amantea conceived a backyard pavilion as a screen element that blocks the unsightly portion of the view, enhances the space-defining role of the trees, and organizes the small backyard into a series of spaces that accommodate a full program of outdoor living—pool and pool house, outdoor kitchen, dining area, lounge, and a play area for kids.

Intentionally different from the brick and glass material palette of the main house, the low-lying pavilion is crafted almost exclusively in wood, Amantea explains. The architect composed the pavilion as an assembly of ground, wall, and roof planes that sit gently on the land—so as not to disrupt the tree roots. For the wall planes, vertical slats with generous spacing to provide a sense of porosity protect the woodpile and storage shed.

A contrasting expression of horizontal slats provide the backdrop for the swimming pool and shield views from the yard to the changing area and outdoor shower. The pavilion is both opaque and transparent, and wood is the predominant material throughout, architecturally reprising the material and forms of the existing trees. Douglas fir was speced for the wall planes, and ipe for the horizontal decking and soffits. A slatted wood trellis, supported by black metal columns, provides a sense of shelter and shade for the outdoor dining area, which features a custom oak table.

In contrast to the wood, a low concrete bar defines the western edge of the property, incorporating a pizza oven and fire pit within its horizontal structure. Kitchen, dining, and lounge areas are arranged along this side of the yard to accommodate the swimming pool and open space on the larger, eastern portion.—E.K.

“I like buildings that make you question when you are inside them and when you are outside. This one does that very well.” — Juror Donald Lococo

Upcoming Events

  • Protecto Wall VP Standard Installation Video

    Webinar

    Register for Free
  • How Right-Sized Plumbing Saves Money, Saves Water, and Protects Wellness

    Webinar

    Register for Free
  • Building Careers from the Ground Up: The IUPAT Floor Covering Apprenticeship and Training Program

    Webinar

    Register for Free
All Events