Compass House

Project Details

Project Name
Compass House
Architect
Superkül
Project Types
Single Family
Shared By
Symone
Project Status
Array
Size
4,300 ft²
Team
Builder: Wilson Project Management, Builder

Project Description

2017 Builder’s Choice & Custom Home Design Awards
Custom Home More Than 5,000 Square Feet: Grand

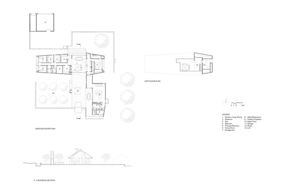
Compass House may not point true north, but architect Meg Graham of Superkül designed the dwelling to connect with distinct geographic elements in each ordinal direction. Graham linked the linear structure with its 200-acre site on the Niagara Escarpment—about an hour and a half from Graham’s office in Toronto—in order to create a serene weekend retreat for the homeowners. Her goal was to give the family of six, “a place of spiritual resonance that orients and heightens one’s experience of the surrounding environment.”

West of the house stands an old-growth forest. A long patio anchored by a towering outdoor fireplace overlooks the mix of indigenous hard and softwoods. A tidy collection of apple trees adjacent to the patio can be seen through twin window walls that form a breezeway that opens up indoor living spaces to the outdoors and capturing expansive vistas of an agricultural area to the north and east and a gentle hill to the south. The house is primarily a single-story structure in a shape reminiscent of longhouses, so most spaces are a single room wide. This form maximizes views, natural light, and ventilation. It also visually tethers the low-lying house to the ground.

Sustainable and natural materials—such as white oak and cedar walls and floors—further enhance the building’s relationship with the environment. Sustainability in every sense of the word was paramount to the clients: They want the house to serve as a family heirloom as well as honor its delicate surroundings. Literally uniting the building to the land, a geothermal heating system keeps occupants toasty during the region’s long winters. – S.D.H.

2016 Residential Architect Design Awards
Custom House More Than 3,000 Square Feet: Honorable Mention

The 4,300-square-foot Compass House, designed by Superkül, is a weekend home for a family of six that sits on a predominantly flat 200-acre site in Mulmur, Ontario. Two volumes in an L-shaped plan create a courtyard from which the family can view the site’s three principal landscapes—forest to the west, hills to the south, and fields to the north and east—over low retaining walls built of site-found fieldstone that mark the complex’s perimeter. White cement-board cladding wraps the low-slung exteriors, and the warm interiors feature white oak and knotty white cedar floors and walls which glow with the abundant light that reflects off of white ceilings. -E.K.

Upcoming Events

  • Protecto Wall VP Standard Installation Video

    Webinar

    Register for Free
  • How Right-Sized Plumbing Saves Money, Saves Water, and Protects Wellness

    Webinar

    Register for Free
  • Building Careers from the Ground Up: The IUPAT Floor Covering Apprenticeship and Training Program

    Webinar

    Register for Free
All Events