Connectree

Project Details

Project Name
Connectree
Location
TbilisiGEORGIA
Architect
Stipfold
Project Types
Single Family
Project Scope
New Construction
Shared By
Stipfold
Project Status
On the Boards/In Progress

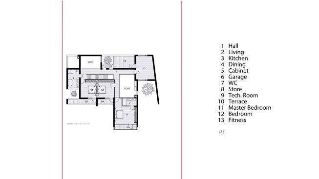
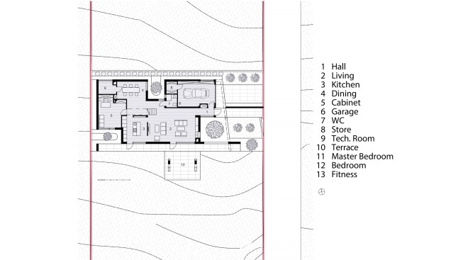
Project Description

  The house splits the outdoor space in two and stretches between fences that face each other. Double entrance, one of which leads to a garage, cuts through the side fence and is separated by a wall keeping a parking spot out of sight. 
  Due to a small budget of the project, shapes of the building are minimalistic and design is focused on efficient dispersal of the rooms and keeping the entire building nourished with a natural light by day. White color is effectively contrasted with greenness of nature surrounding the house, as if the building is a canvas and the first image to greet you when entering the space is a tree, peeking out from the gaps of the wall in front of it.

Upcoming Events

  • Happier Homebuyers, Higher Profits: Specifying Fireplaces for Today’s Homes

    Webinar

    Register for Free
  • Sales is a Sport: These Tactics Are the Winning Play

    Webinar

    Register for Free
  • Dispelling Myths and Maximizing Value: Unlock the Potential of Open Web Floor Trusses

    Webinar

    Register for Free
All Events