Contemporary Clean Kitchen

Project Details

Project Name
Contemporary Clean Kitchen
Architect
S&W Kitchens
Project Types
Single Family
Project Status
Built
Year Completed
2017
Size
350 ft²

Project Description

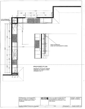
The client wanted a more contemporary, uncluttered kitchen to update the dated space. We worked closely with her builder to assure wall removal/support, plumbing and electrical changes to accommodate the new design. To create the contemporary style, we removed the angled corners and put everything on a straight grid. Then, using very modern Poggenpohl cabinets in glossy white, we opened and lightened the space. To avoid everything being too flat, we used a cantilevered design and white-washed wood on the island. We created a simple, clean, uncluttered contemporary kitchen with an open floor plan that showcases unobstructed views to the pool and other living areas. Pull out pantries and interior accessories made this an organized kitchen. The matching appliance cabinets panels created a continuous color and the handle-less design of the cabinets further added to the clean lines.

Upcoming Events

  • Happier Homebuyers, Higher Profits: Specifying Fireplaces for Today’s Homes

    Webinar

    Register for Free
  • Sales is a Sport: These Tactics Are the Winning Play

    Webinar

    Register for Free
  • Dispelling Myths and Maximizing Value: Unlock the Potential of Open Web Floor Trusses

    Webinar

    Register for Free
All Events