Contemporary Vintage Bath

Project Details

Project Name
Contemporary Vintage Bath
Location
OrlandoFlorida
Architect
S&W Kitchens
Project Types
Single Family
Project Status
Built
Year Completed
2017
Size
120 ft²

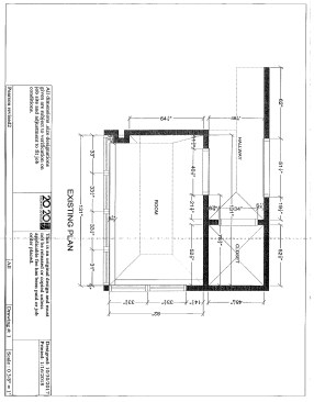
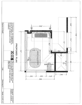
Project Description

The client asked us to add a bathroom on the second floor where none existed, keeping with the contemporary vintage feel of the home. A closet wall was removed to add a shower, tub, toilet and sink area to the space. The client wanted to keep the windows that were original to the home so we added a hurricane-approved frosted overlay on the bottom half of the window – providing privacy and meeting code for hurricane compliance. Plumbing and electrical were brought in to the space to create a spa-like bathroom for the second floor of this older home. Other features: aqua glider shower door with low iron glass to help minimize the green tint and wall to wall niche in the shower to allow for product storage. We also repurposed existing door/hardware to match what was existing.

Upcoming Events

  • Protecto Wall VP Standard Installation Video

    Webinar

    Register for Free
  • How Right-Sized Plumbing Saves Money, Saves Water, and Protects Wellness

    Webinar

    Register for Free
  • Building Careers from the Ground Up: The IUPAT Floor Covering Apprenticeship and Training Program

    Webinar

    Register for Free
All Events