Coralville Intermodal

Project Details

Project Name
Coralville Intermodal
Location
906 Quarry RdCoralvilleIAUSA52241
Project Scope
New Construction
Shared By
Jill
Project Status
Built
Year Completed
2015
Size
5,436 ft²

Project Description

The development in which this project is located was historically populated with truck stops and dilapidated warehouses. It was an undesirable brownfield when the City elected to purchase the land to create an active mixed-use district with easy access to the interstate and linkages to adjacent communities.

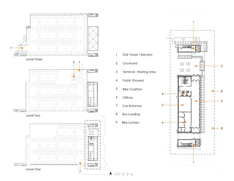
The development is home to the Intermodal Transit Facility which, is an integral part of this retail-hospitality-healthcare district. Organizationally the project consists of two components – a parking structure and a bus terminal. Park and ride functions for area commuters are located on levels one and two, with dedicated parking for one of the district hotels on level three. The bus terminal component is located on the east side and provides the face of the facility. Bus ticketing, administrative offices, and the Iowa Bike Coalition operate from the component.

The project occupies a portion of the development with significant grade changes from the north to south and east to west. This topography provides a unique opportunity for vehicular circulation: access to the top level from the west, level two from the north, and level one from the east.

The mass of the parking component is embedded into the hillside with the uppermost level serving as surface parking for the hotel directly to the west. The program elements that are activated by people – vertical circulation and bus terminal – are celebrated as they anchor the street edge to the east. Perforated metal panels veil and accentuate the experience of moving through these spaces, while shading them during the day. At night the panels become textural. The veils have been selectively removed to reveal activity within and create a passive security measure while allowing views from a variety of vantage points.

Upcoming Events

  • Happier Homebuyers, Higher Profits: Specifying Fireplaces for Today’s Homes

    Webinar

    Register for Free
  • Sales is a Sport: These Tactics Are the Winning Play

    Webinar

    Register for Free
  • Dispelling Myths and Maximizing Value: Unlock the Potential of Open Web Floor Trusses

    Webinar

    Register for Free
All Events