Corcoran House

Project Details

Project Name
Corcoran House
Location
WashingtonDC
Architect
KUBE Architecture
Project Types
Project Scope
Renovation/Remodel
Shared By
dmadsen
Project Status
Built
Size
2,900 ft²

Project Description

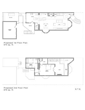
The owner of this Washington DC row house requested a totally open space for entertaining, with a modern and warm ambiance. The fireplace wall and kitchen island became the two focal points that define the formal and informal gathering spaces. Dark porcelain tile and fumed larch surround the fireplace, while contrasting glossy white cabinets and a 15’ long Equatro marble island top centers the kitchen zone.The rear wall was replaced with sliding glass doors in order to physically and visually link the new rear deck with the interior spaces. The remaining “envelope” remains neutral with door panels concealing a powder room and coat closet, while simultaneously acting as partial stair rails.Upstairs the same material and color selections are used in the new open master bedroom suite and office area, creating a visually cohesive flow between public and private areas.

Upcoming Events

  • Protecto Wall VP Standard Installation Video

    Webinar

    Register for Free
  • How Right-Sized Plumbing Saves Money, Saves Water, and Protects Wellness

    Webinar

    Register for Free
  • Building Careers from the Ground Up: The IUPAT Floor Covering Apprenticeship and Training Program

    Webinar

    Register for Free
All Events