Credit River Residence

Project Details

Project Name
Credit River Residence
Location
SavageMN
Project Types
Single Family
Project Status
Built
Year Completed
2016
Size
4,696 ft²

Project Description

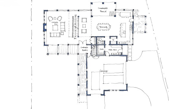
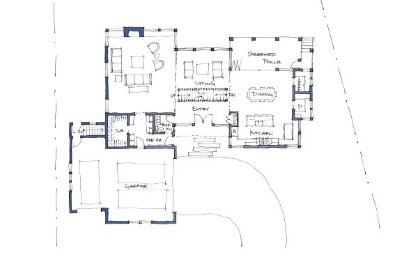
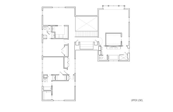
The client is a high-end commercial builder. When it came time to build a new house for his family on an empty lot in a suburban development, he commissioned the architecture firm to design a simple, clean-lined modern home that was different than the surrounding, standard-issue homes in the neighborhood. Given the clients’ vision, the designers were challenged by the neighborhood association’s design guidelines which prevent flat main roofs and discreet garages. Using the design constraints as an opportunity, the architecture firm designed a home with a distinctive and unusual mix of traditional and contemporary design elements. The exterior, which features an inspired juxtaposition of steep gabled elements and flat roofed boxes, is finished with white board and batten siding, horizontal tongue and groove ash siding, dark metal panels, and a bright yellow contemporary door. To satisfy the requirements for a three-car garage, the designer created an attached two-car garage and a single stall hidden inside one of the flat-roofed boxes. Inside, the open floor plan is designed to maximize views of marshland and a nearby river with a master suite, four bedrooms, an integrated kitchen, dining, and living area, an office, a mudroom, and a finished basement. Now that the house is finished, it’s become a wayfinding element for the neighborhood. At a recent National Night Out, the clients were amused to see their neighbors introduce themselves to each other and attempt to explain which of the many look-alike houses was theirs. Once the neighbors explained where they lived in relation to the new, one-of-a-kind modern house, the confusion was eliminated!

Upcoming Events

  • Happier Homebuyers, Higher Profits: Specifying Fireplaces for Today’s Homes

    Webinar

    Register for Free
  • Sales is a Sport: These Tactics Are the Winning Play

    Webinar

    Register for Free
  • Dispelling Myths and Maximizing Value: Unlock the Potential of Open Web Floor Trusses

    Webinar

    Register for Free
All Events