Cube House

Project Details

Project Name
Cube House
Project Types
Single Family
Project Status
Built
Year Completed
2014
Size
2,600 ft²

Project Description

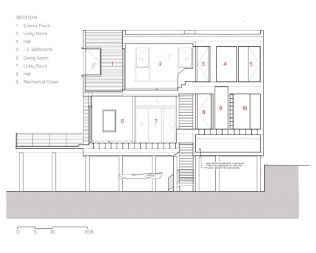
Site | Wetlands The site is part of an unpredictable and delicate natural ecosystem on Moriches Bay, exposed to both heavy wind gusts, and ocean and bay tides that frequently flood the site. Successive storms had irreparably damaged the site’s existing, nonconforming 800 square foot shack and deck. Program The Clients asked for a house to serve as a beach retreat for a multi-generational family. In order to accommodate the extended family, we designed a house with generous public spaces for entertaining, intimate spaces for retreat and privacy, a master suite for grandparents, a second master suite for parents, and bunk rooms for the grandchildren. Located in an AE Flood Zone, the new structure was required to be 11 feet above grade. The existing foot print could not be increased, resulting in a building volume of 36,000 ft3, a 40ft x 30ft x 30ft cube. Within this volume are conditioned spaces (a maximum of 2,400 square feet), decks and mechanical equipment. Design Solution Conceived of as a floating cube perched on timber piles, hovering over the wetlands, the house is a deceivingly simple platonic mass that conceals a complex multi-level dwelling and exterior spaces within its volume. The approach is a wrapping boardwalk that rises to the elevated entrance cut into the surface of the cube. The project embraces the tension between the floating form of the house with the grounded raw concrete box containing the septic system and planted with a garden of native plants. The façade is a playful composition of carefully located openings that obscure the scale of the building and highlight scenic views out to the surrounding water. The design has four split levels, allowing each zone of the house to have a distinct spatial experience. Within, there are intimate spaces for retreat and privacy, as well as open loft-like spaces for entertaining. The central stair divides the house into two sides. To the north, public gathering spaces overlook the bay. To the south, private bedroom spaces have views of the ocean. Given the constraints of a modest budget of $960,000 for construction and a challenging site with no infrastructure, the house represents the concerted effort to combine high design, environmental sensitivity, and economical use of resources. Integral to this was our studio’s design-build project delivery approach. The flexibility of integrated architectural and construction services allowed not only a truer implementation of our design, but a more responsive budgeting and value engineering process that allowed the project to be delivered under budget.

Upcoming Events

  • Protecto Wall VP Standard Installation Video

    Webinar

    Register for Free
  • How Right-Sized Plumbing Saves Money, Saves Water, and Protects Wellness

    Webinar

    Register for Free
  • Building Careers from the Ground Up: The IUPAT Floor Covering Apprenticeship and Training Program

    Webinar

    Register for Free
All Events