Dietert Ranch

Project Details

Project Name
Dietert Ranch
Location
Real CountyTX
Project Types
Single Family
Project Status
Built
Year Completed
2013
Size
3,940 ft²

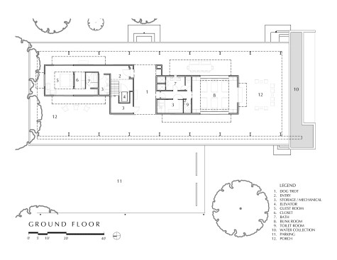
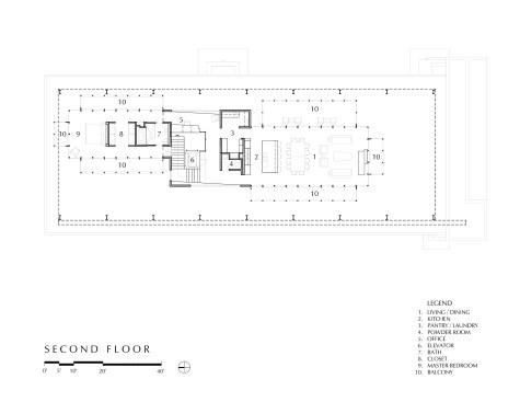
Project Description

The project is an exploration of the typology of contemporary agriculture / industrial buildings that define the rural landscape today, and their fusion with and reinterpretation of the Texas Hill Country vernacular. Significant attention was given to the processional approach to the structure beginning with a highway entrance and drive that winds through Oak motts, slowly revealing the house. No trees were removed for construction of the house. A historic rock tank and accompanying windmill were saved and integrated as critical elements of the composition of structures. The house sets under and completely independent of the roof structure. The large umbrella-like roof provides shade and channels cooling breezes through and around the house while creating numerous outdoor spaces. The tough exterior is primarily concrete and galvanized steel with weathering steel screens and deck railings which allow visual transparency from inside, while the interiors are primarily finished in Douglas Fir. This project is a fresh approach to the stereotypical Ranch structure imagery, yet makes references to historic elements while interpreting them in a more contemporary vernacular.

Upcoming Events

  • Protecto Wall VP Standard Installation Video

    Webinar

    Register for Free
  • How Right-Sized Plumbing Saves Money, Saves Water, and Protects Wellness

    Webinar

    Register for Free
  • Building Careers from the Ground Up: The IUPAT Floor Covering Apprenticeship and Training Program

    Webinar

    Register for Free
All Events