Double Stick

Project Details

Project Name
Double Stick
Architect
SPF:a
Project Types
Single Family
Project Scope
New Construction
Shared By
Ann Margaret
Project Status
Built
Year Completed
2015
Size
5,000 ft²
Team
Architect: Zoltan E. Pali, FAIA

Project Description

This single-family residence that sits atop an existing flat pad features a façade held in place by a high-performance two-sided architectural panel tape. The owner of the home was an executive of 3M, which is where this tape was developed and to our knowledge is the first application for a residential home.

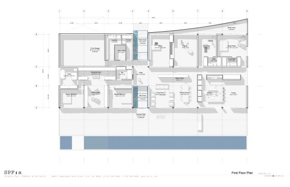
The house sits within an existing development with rules restricting development to the current flat pad and limiting height to 14 feet above grade. The single story house is a rational arrangement of equal bays with private and public functions on either side of two courts that create a swath of light, water and space through the middle of the building. A clerestory running east-west brings south and north light into the galleries and secondary spaces, while a 25 foot cantilevered trellis protects the southern patio and pool from neighbors above and frames sweeping uninterrupted views of the Los Angeles Basin to the south.

There is one single material for flooring through the entire house and outside courts and patios, creating a massive plinth that the rest of the house sits on. With a deliberately limited material pallet the house forms a set of protected quiet spaces for contemplating the landscape.

The exterior of the house is wrapped in anodized aluminum slats held in place by a high strength tape used in aircraft production developed by 3M, where the client was a scientist, manager and vice president.

Upcoming Events

  • Protecto Wall VP Standard Installation Video

    Webinar

    Register for Free
  • How Right-Sized Plumbing Saves Money, Saves Water, and Protects Wellness

    Webinar

    Register for Free
  • Building Careers from the Ground Up: The IUPAT Floor Covering Apprenticeship and Training Program

    Webinar

    Register for Free
All Events