Dubuque Intermodal Facility

Project Details

Project Name
Dubuque Intermodal Facility
Location
950 Elm St.DubuqueIA52001
Project Types
Project Scope
New Construction
Shared By
Jill
Project Status
Built
Year Completed
2016
Style
Modern
Size
9,492 ft²

Project Description

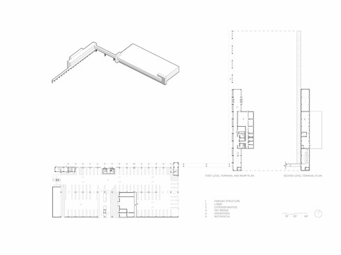
A product of local, state, and federal investment, the transportation center leverages infrastructure to spur regeneration in a historic city district. The campus, sized for future passenger trains to Chicago and Minneapolis and configured to allow expansion, includes three components: a Parking Garage for 292 vehicles, a Raised Walkway, and a Terminal Building with ticketing booths, office space, and restrooms. These carefully arranged elements provide a backdrop to the district, screening it from the adjacent interstate. In crafting this urban edge, the project also primes an adjacent site for future public green space.

The complex achieves urban impact with contextual sensitivity. Complying with preservation guidelines, the buildings’ scale and proportions reference their historic surroundings. Column and window rhythms echo nearby warehouses. Terracotta is the primary exterior material, complementing the district’s brick construction. Sunscreens cloak the Parking Garage and rain screens clad the Terminal Building, with patterns that also emerge in perforated aluminum along pedestrian circulation.

The Terminal Building’s materials include exposed painted structural steel and metal acoustic decking, stained cedar siding, burnished CMU, and radiant concrete flooring. The Raised Walkway construction is similar. Painted curtainwall frames low-e, low iron, high visibility glazing. Terminal Building interior finishes include carpeting; black cork board; and high NRC ceiling tiles. Countertops are solid surface and restroom partitions are stainless steel. Light fixtures are all LED.

At the post-tensioned concrete Parking Garage, a galvanized steel structure supports the perforated metal panels, and terra cotta baguettes. LED light fixtures throughout utilize daylight harvesting and occupancy sensors.

Upcoming Events

  • Protecto Wall VP Standard Installation Video

    Webinar

    Register for Free
  • How Right-Sized Plumbing Saves Money, Saves Water, and Protects Wellness

    Webinar

    Register for Free
  • Building Careers from the Ground Up: The IUPAT Floor Covering Apprenticeship and Training Program

    Webinar

    Register for Free
All Events