End of the Road

Project Details

Project Name
End of the Road
Location
BethesdaMD
Project Types
Single Family
Project Status
Built
Year Completed
2012
Size
4,340 ft²

Project Description

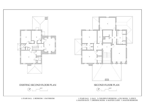
Program This project is an addition to and renovation of a 1930’s residence at the end of a public road in Bethesda, MD for a newspaper editor, a journalist, and their two daughters. While primarily serving as the owners’ private home, the new residence also needed to accommodate guests during large public receptions. Interior programmatic requirements centered on a new family room, office and guest room on the first floor, as well as a new office on the second floor. All other existing spaces were to be renovated and/or relocated, allowing for improved rooms with an easy flow of circulation. Solution Our major intention was to design a contextual addition, which, while providing the desired interior spaces, would open the residence to public parkland at the end of the road. To facilitate this, the living room was renovated with larger windows, the dining room was relocated to the end of the entry hall, and a new family room was designed adjacent to the public park. While being compatible in its architecture, this new family room employs three walls of windows, allowing views and natural light that are missing in the existing residence. Large openings connect the living and dining rooms to the family room, improving the interior circulation while reinforcing the connection to the exterior. The existing stair was also relocated, allowing for a more generous entry hall, as well as improved vertical circulation. Located adjacent to the exterior wall of the living room, this new stair is designed as a connection between the existing residence and the new addition. Eight skylight/laylights and a glass block wall allow this stair to light the center of the new floor plan. Energy efficiency in this residence is greatly improved with the implementation of a geothermal HVAC system, foam insulation, and all new windows. Reclaimed materials include the reuse of materials from the existing timber porch and reclaimed hardwood floors.

Upcoming Events

  • Happier Homebuyers, Higher Profits: Specifying Fireplaces for Today’s Homes

    Webinar

    Register for Free
  • Sales is a Sport: These Tactics Are the Winning Play

    Webinar

    Register for Free
  • Dispelling Myths and Maximizing Value: Unlock the Potential of Open Web Floor Trusses

    Webinar

    Register for Free
All Events