Enough House

Project Details

Project Name
Enough House
Project Types
Single Family
Project Scope
New Construction
Shared By
Symone
Project Status
Built
Size
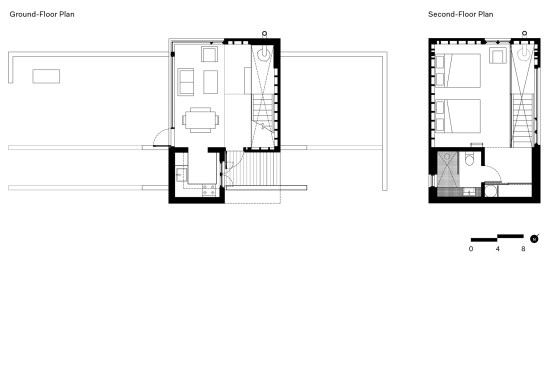
700 ft²
Room or Space

Project Description

2016 Residential Architect Design Awards
Custom House Less Than 3,000 Square Feet: Honorable Mention

Text by Zach Mortice

The Enough House in Upper Kingsburg, Nova Scotia, is a monolithic gabled volume clad in Cor-Ten steel; an example of what the team at MacKay-Lyons Sweetapple Architects calls a “good generic” housing typology with a “rural industrial” aesthetic. The form recalls the prototypical child’s drawing of a house, but it is executed with a hyper-vigilant attention to craft and reverence for materials. The house—one of the newest additions to Brian MacKay-Lyons’ Shobac Farm, which is part retreat, part design test-lab—is hoisted up onto concrete plinths that serve as the foundation (tie-downs help withstand lateral wind loads) and extend beyond the perimeter of the house proper to frame an entry procession and courtyard. Inside, the house—which is used by architectural interns much of the year, but is available for summer rental—is a tasteful collection all things rustic and warm: a wood-burning stove, a ladder to a sleeping loft, wide stained-pine floorboards, exposed timber framing, and Douglas fir plywood sheathing.

Text by Edward Keegan, AIA

The 700-square-foot Enough House, designed by Halifax, Nova Scotia–based MacKay-Lyons Sweetapple Architects, sits within a unique complex of structures, called Shobac, on the Atlantic coast of the Canadian province. It’s part of a fascinating dialogue between traditional and modern architectural forms on Brian MacKay-Lyons’ Ghost Architectural Laboratory encampments. Enough House is the 10th permanent structure added to the ensemble and its site on the entry road gives it the prominence of a gatehouse.

The gabled volume plays off an adjacent schoolhouse, a classically designed 1830s structure that MacKay-Lyons, Hon. FAIA, moved to the site just a few years ago. “The gable shape holds onto tradition as an archetype,” he says. “We’re searching for the mythic center.” But while the historic structure is strictly symmetrical in its volume and detailing, the house stems from a more kinetic impulse that informs both its fenestration and the relationship between the interior spaces and the surrounding landscape.

The simple palette is defined by 4-by-8-foot panels—Cor-Ten steel on the exterior, plywood on the interior. MacKay-Lyons refers to the aesthetic as “rural industrial” and eschews fetishizing craft or materials. The structure sits on two concrete walls that extend into the landscape, and the entrance is at the south corner, where a piece of the volume has been dramatically cut away. This negative space is balanced by floor-to-ceiling glazing at the north corner which provides expansive views of the property’s agricultural areas (and the occasional visiting sheep) from within.

The Cor-Ten sheathing is detailed as a rainscreen with rigid insulation lying outboard of the wood-framed walls. This construction allows for exposed stick framing in the primary dwelling areas—the living room on the ground level and bedroom above. The service areas—a kitchen and bathroom—receive a more “finished” look with plywood sheathing that conceals services and provides a sturdy backing for cabinetry. The exterior’s rusty metal is reprised within by a perforated Cor-Ten screen framing a bent-metal stair.

The building’s lack of eaves is a sculptural detail to be sure, but is also rooted in the place; Nova Scotia has the highest weathering rate in North America, with as many as 265 freeze/thaw cycles each year. Having an eave is begging for trouble with ice dams.

The Enough House is a smart essay in how to create a quietly remarkable structure with minimal means. “It’s not a folly,” MacKay-Lyons says. Rather, it’s meant to be a good, generic building that’s part of an ensemble—not unlike the fishing shacks that have been the mainstay of Nova Scotia’s coast for centuries. “That’s what makes the best places,” he says.

Project Credits
Project: Enough House, Upper Kingsburg, Nova Scotia
Client: Shobac
Architect: MacKay-Lyons Sweetapple Architects, Halifax, Nova Scotia .
Brian MacKay-Lyons, Hon. FAIA (principal/design architect); Meggie Kelley, Tyler Reynolds, AIA (intern architects)
Engineer: Blackwell . Renée MacKay-Lyons
General Contractor: Philip Creaser Custom Homes and Woodworking
Size: 700 square feet
Cost: Withheld

Upcoming Events

  • Protecto Wall VP Standard Installation Video

    Webinar

    Register for Free
  • How Right-Sized Plumbing Saves Money, Saves Water, and Protects Wellness

    Webinar

    Register for Free
  • Building Careers from the Ground Up: The IUPAT Floor Covering Apprenticeship and Training Program

    Webinar

    Register for Free
All Events