Fargo Laundry Residence

Project Details

Project Name
Fargo Laundry Residence
Location
FargoND
Project Types
Single Family
Project Status
Built
Year Completed
2013
Size
19,000 ft²

Project Description

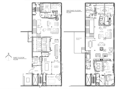
Fargo Laundry Residence is the result of a 2-year design, restoration and construction process. The building components were exposed, requiring unique management, as 100 years of authenticity cannot be recreated! Starting in total disrepair, painted “white” from top to bottom, the project emerged a restored icon for Fargo. Chris Hawley Architects maintained the original warehouse aesthetic, preserved remnants of the past, and wove in a comfortable contemporary house suitable for entertaining. Considering the “big picture” and “minutia”, this design resulted in an inspiring space laced with intimate handmade details one can touch and feel. CHA was the designer, construction manager, and interior designer responsible for on-site coordination and, at times, “swinging the hammer.” to ensure the highest quality build. The lighting, door hardware, and mill-work were designed by CHA and custom-made by local artisans. Overlooking the Fargo skyline along a busy street is a project that has become a legacy for the Owners and contributes to the downtown historic fabric. it speaks to all good things…aging beautifully, embracing reinvention by adaptation and a deep-rooted appreciation for quality.

Upcoming Events

  • Protecto Wall VP Standard Installation Video

    Webinar

    Register for Free
  • How Right-Sized Plumbing Saves Money, Saves Water, and Protects Wellness

    Webinar

    Register for Free
  • Building Careers from the Ground Up: The IUPAT Floor Covering Apprenticeship and Training Program

    Webinar

    Register for Free
All Events